Architecture

Marcelo Rios's disdain for grass evident in House RP

Marcelo Rios's disdain for grass evident in House RP
House RP would look right at home in George Lucas sci-fi movie THX 1138 (Photo: Nico Saieh)
House RP would look right at home in George Lucas sci-fi movie THX 1138 (Photo: Nico Saieh)
View 41 Images
House RP is a home to former tennis star Marcelo Rios and his family (Photo: Nico Saieh)
1/41
House RP is a home to former tennis star Marcelo Rios and his family (Photo: Nico Saieh)
The property was completed earlier this year (Photo: Nico Saieh)
2/41
The property was completed earlier this year (Photo: Nico Saieh)
We're not sure whether or not the titanium dioxide is reducing smog in this case, but we're investigating (Photo: Nico Saieh)
3/41
We're not sure whether or not the titanium dioxide is reducing smog in this case, but we're investigating (Photo: Nico Saieh)
House RP would look right at home in George Lucas sci-fi movie THX 1138 (Photo: Nico Saieh)
4/41
House RP would look right at home in George Lucas sci-fi movie THX 1138 (Photo: Nico Saieh)
Titanium oxide has shown promise in many different experiments, including "self-cleaning" walls (Photo: Nico Saieh)
5/41
Titanium oxide has shown promise in many different experiments, including "self-cleaning" walls (Photo: Nico Saieh)
House RP is located on the foothills of Santiago de Chile (Photo: Nico Saieh)
6/41
House RP is located on the foothills of Santiago de Chile (Photo: Nico Saieh)
The property was completed earlier this year (Photo: Nico Saieh)
7/41
The property was completed earlier this year (Photo: Nico Saieh)
House RP would look right at home in George Lucas sci-fi movie THX 1138 (Photo: Nico Saieh)
8/41
House RP would look right at home in George Lucas sci-fi movie THX 1138 (Photo: Nico Saieh)
House RP is a home to former tennis star Marcelo Rios and his family (Photo: Nico Saieh)
9/41
House RP is a home to former tennis star Marcelo Rios and his family (Photo: Nico Saieh)
House RP is located on the foothills of Santiago de Chile (Photo: Nico Saieh)
10/41
House RP is located on the foothills of Santiago de Chile (Photo: Nico Saieh)
We're not sure whether or not the titanium dioxide is reducing smog in this case, but we're investigating (Photo: Nico Saieh)
11/41
We're not sure whether or not the titanium dioxide is reducing smog in this case, but we're investigating (Photo: Nico Saieh)
The house affords views of the local golf course (Photo: Nico Saieh)
12/41
The house affords views of the local golf course (Photo: Nico Saieh)
House RP is a home to former tennis star Marcelo Rios and his family (Photo: Nico Saieh)
13/41
House RP is a home to former tennis star Marcelo Rios and his family (Photo: Nico Saieh)
The property was completed earlier this year (Photo: Nico Saieh)
14/41
The property was completed earlier this year (Photo: Nico Saieh)
House RP is a home to former tennis star Marcelo Rios and his family (Photo: Nico Saieh)
15/41
House RP is a home to former tennis star Marcelo Rios and his family (Photo: Nico Saieh)
Titanium oxide has shown promise in many different experiments, including "self-cleaning" walls (Photo: Nico Saieh)
16/41
Titanium oxide has shown promise in many different experiments, including "self-cleaning" walls (Photo: Nico Saieh)
House RP is a home to former tennis star Marcelo Rios and his family (Photo: Nico Saieh)
17/41
House RP is a home to former tennis star Marcelo Rios and his family (Photo: Nico Saieh)
House RP would look right at home in George Lucas sci-fi movie THX 1138 (Photo: Nico Saieh)
18/41
House RP would look right at home in George Lucas sci-fi movie THX 1138 (Photo: Nico Saieh)
A children's play room (Photo: Nico Saieh)
19/41
A children's play room (Photo: Nico Saieh)
House RP features a synthetic grass roof (Photo: Nico Saieh)
20/41
House RP features a synthetic grass roof (Photo: Nico Saieh)
The home boasts views over the local golf course (Photo: Nico Saieh)
21/41
The home boasts views over the local golf course (Photo: Nico Saieh)
House RP is located on the foothills of Santiago de Chile (Photo: Nico Saieh)
22/41
House RP is located on the foothills of Santiago de Chile (Photo: Nico Saieh)
House RP features a synthetic grass roof (Photo: Nico Saieh)
23/41
House RP features a synthetic grass roof (Photo: Nico Saieh)
House RP features a private cinema (Photo: Nico Saieh)
24/41
House RP features a private cinema (Photo: Nico Saieh)
Titanium oxide has shown promise in many different experiments, including "self-cleaning" walls (Photo: Nico Saieh)
25/41
Titanium oxide has shown promise in many different experiments, including "self-cleaning" walls (Photo: Nico Saieh)
House RP is a home to former tennis star Marcelo Rios and his family (Photo: Nico Saieh)
26/41
House RP is a home to former tennis star Marcelo Rios and his family (Photo: Nico Saieh)
The design of House RP is striking (Photo: Nico Saieh)
27/41
The design of House RP is striking (Photo: Nico Saieh)
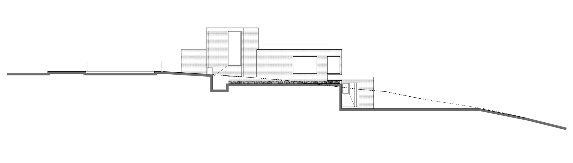
Architectural drawing of House RP (Image: Gonzalo Mardones Viviani)
28/41
Architectural drawing of House RP (Image: Gonzalo Mardones Viviani)
Architectural drawing of House RP (Image: Gonzalo Mardones Viviani)
29/41
Architectural drawing of House RP (Image: Gonzalo Mardones Viviani)
Architectural drawing of House RP (Image: Gonzalo Mardones Viviani)
30/41
Architectural drawing of House RP (Image: Gonzalo Mardones Viviani)
Architectural drawing of House RP (Image: Gonzalo Mardones Viviani)
31/41
Architectural drawing of House RP (Image: Gonzalo Mardones Viviani)
Architectural drawing of House RP (Image: Gonzalo Mardones Viviani)
32/41
Architectural drawing of House RP (Image: Gonzalo Mardones Viviani)
Architectural drawing of House RP (Image: Gonzalo Mardones Viviani)
33/41
Architectural drawing of House RP (Image: Gonzalo Mardones Viviani)
Architectural drawing of House RP (Image: Gonzalo Mardones Viviani)
34/41
Architectural drawing of House RP (Image: Gonzalo Mardones Viviani)
Architectural drawing of House RP (Image: Gonzalo Mardones Viviani)
35/41
Architectural drawing of House RP (Image: Gonzalo Mardones Viviani)
Architectural drawing of House RP (Image: Gonzalo Mardones Viviani)
36/41
Architectural drawing of House RP (Image: Gonzalo Mardones Viviani)
Architectural drawing of House RP (Image: Gonzalo Mardones Viviani)
37/41
Architectural drawing of House RP (Image: Gonzalo Mardones Viviani)
Architectural drawing of House RP (Image: Gonzalo Mardones Viviani)
38/41
Architectural drawing of House RP (Image: Gonzalo Mardones Viviani)
Architectural drawing of House RP (Image: Gonzalo Mardones Viviani)
39/41
Architectural drawing of House RP (Image: Gonzalo Mardones Viviani)
Architectural drawing of House RP (Image: Gonzalo Mardones Viviani)
40/41
Architectural drawing of House RP (Image: Gonzalo Mardones Viviani)
Architectural drawing of House RP (Image: Gonzalo Mardones Viviani)
41/41
Architectural drawing of House RP (Image: Gonzalo Mardones Viviani)
View gallery - 41 images

Designed by Chilean architect Gonzalo Mardones Viviani to serve as family home to compatriot and former tennis star Marcelo Rios, House RP features a futuristic-looking design that would look right at home in George Lucas sci-fi movie THX 1138.

Like the Caterpillar House we recently covered, House RP is located in the foothills of Santiago de Chile, and affords stunning views of the local area. A green roof was originally planned for the home, but the client's feelings about grass – at Wimbledon in 1997 he said that grass is "for cows and soccer" – resulted in synthetic grass being adopted instead.

The faux-green roof still serves a practical purpose, though, as it was placed on rafters, creating an air bed that protects the structure from direct sunlight and helps to maintain a lower temperature inside.

The property was completed earlier this year (Photo: Nico Saieh)
The property was completed earlier this year (Photo: Nico Saieh)

To lend the home its brilliant white appearance, Gonzalo Mardones Viviani added titanium dioxide to the concrete during construction. Intriguingly, one of the potential added bonuses of this approach could be an exterior finish that helps reduce air pollution. While the architects avoid directly making this claim, they do point out that recent nanotechnology studies have indicated that such effects are possible.

Indeed, as we reported back in 2010, researchers have for some time been researching the effects of adding titanium dioxide to concrete and its potential for creating for self-cleaning walls, garden furniture, and walls.

House RP was completed earlier this year.

Source: Gonzalo Mardones Viviani via Arch Daily

View gallery - 41 images
5 comments
5 comments
panzer225MAAZ
In THX1138 the city and all known living areas were underground!! This home would be better compared to STAR TREK,SLEEPER, both TOTAL RECALL movies,and several other future movie sets.
Don Duncan
I need to know the cost per square meter. I might be building on a lot at Galt's Gulch, Chile, 45 minutes from Santiago.
Slowburn
Making the reference to THX 1138 says bad things about the house.
HappyPhil
It's the house from Beetlejuice.
Robert Filzbock
Where we live we are constantly cutting grass, putting fertilizer down and attempt our best to make area look like a picture book surrounding. What a waste and we are killing our environment, unfortunately the local HOA won't budge with alternatives.
I would love to see heavy blanketing covered with large pebbles displaying some great landscaping, which requires almost no water or maintenance. I few complimentary plants which would avoid the barren look would be all that's required.