Architecture

Shipping container community center services Shanghai's migrant workers

Shipping container community center services Shanghai's migrant workers
The Community Cube center was built to service Shanghai's migrant workers (Photo: Jennifer Ha)
The Community Cube center was built to service Shanghai's migrant workers (Photo: Jennifer Ha)
View 11 Images
The community centre was completed in 2013 (Photo: Jennifer Ha)
1/11
The community centre was completed in 2013 (Photo: Jennifer Ha)
The community center measures 150 sq m (1,614 sq ft) (Photo: Jennifer Ha)
2/11
The community center measures 150 sq m (1,614 sq ft) (Photo: Jennifer Ha)
The shipping containers are joined by plates which can be easily detached, allowing the separate containers to be transported more easily (Photo: Jennifer Ha)
3/11
The shipping containers are joined by plates which can be easily detached, allowing the separate containers to be transported more easily (Photo: Jennifer Ha)
The container doors were drilled with small holes in order to allow light to filter across the floor during suitable weather (Photo: Marco Jacobs)
4/11
The container doors were drilled with small holes in order to allow light to filter across the floor during suitable weather (Photo: Marco Jacobs)
Excess corrugated metal was cleverly re-used as a security fence that encloses the area (Photo: Marco Jacobs)
5/11
Excess corrugated metal was cleverly re-used as a security fence that encloses the area (Photo: Marco Jacobs)
The Community Cube center was built to service Shanghai's migrant workers (Photo: Jennifer Ha)
6/11
The Community Cube center was built to service Shanghai's migrant workers (Photo: Jennifer Ha)
The room divider itself, the cabinets, and all suitable furniture sport a whiteboard finish for use as teaching surfaces (Photo: Jennifer Ha)
7/11
The room divider itself, the cabinets, and all suitable furniture sport a whiteboard finish for use as teaching surfaces (Photo: Jennifer Ha)
The center also contains a modest library, play area, and a computer area (Photo: Jennifer Ha)
8/11
The center also contains a modest library, play area, and a computer area (Photo: Jennifer Ha)
Architectural sketch (Image: INCLUDED)
9/11
Architectural sketch (Image: INCLUDED)
Architectural sketch (Image: INCLUDED)
10/11
Architectural sketch (Image: INCLUDED)
Architectural sketch (Image: INCLUDED)
11/11
Architectural sketch (Image: INCLUDED)
View gallery - 11 images

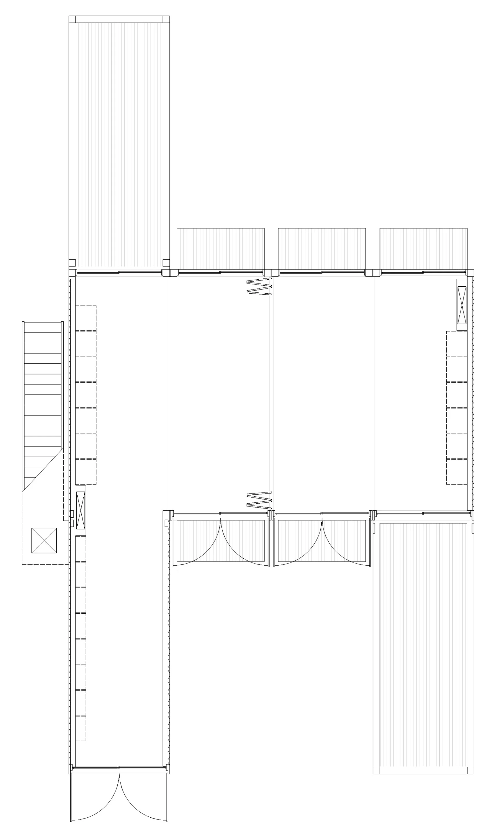
Non-profit organization INCLUDED has produced a new community center for Shanghai's migrant worker community. Dubbed Community Cube, the two-storey 150 sq m (1,614 sq ft) structure was completed in 2013 and comprises a number of used shipping containers as a primary building material.

Based in Shanghai's agriculturally-focused Chongming district, the structure is joined together by metal plates which can be detached, allowing the separate containers to be transported more easily if the migrants need to move on. The interior space is also flexible, and contains a modest library, play area, a computer area, and a main large classroom which can be divided into two rooms using a sliding divider.

The room divider itself, and all suitable furniture sport a whiteboard finish for use as teaching surfaces, while the kids also have small whiteboard-surfaced furniture to draw on. Excess corrugated metal was cleverly re-used as a security fence that encloses the area.

The community centre was completed in 2013 (Photo: Jennifer Ha)
The community centre was completed in 2013 (Photo: Jennifer Ha)

The container doors were drilled with small holes in order to allow light to filter across the floor during sunny weather, and those using the center can open the doors to the outside if conditions allow.

It's not clear how insulation issues were tackled (if at all), and one hopes there's adequate heating for when the colder weather hits. Still, these concerns aside, it's a charming and vibrant space that belies the fact it was built on a shoestring budget.

Source: INCLUDED via Arch Daily

View gallery - 11 images
3 comments
3 comments
BigGoofyGuy
I think it is a very clever use of the shipping containers.
With all the usages for shipping containers, one would think that there will be - eventually - a shortage of shipping containers. The shipping container is a blank canvas that is just waiting for a creative person to use it.
the.other.will
If this trend continues... Imagine a container ship arriving at a port or trains pulling into a terminal, the cargo transferred to tractor-trailer rigs, and a whole town going up in days at the other end of the road trip.
Stephen N Russell
Needed on US Mex border to temp house illegals xing border alone add fence, watchtower & CCTV cameras & U have Instant Temporary Jail. Place mines outside fence area,