Architecture

Bharathi Antarctic research station built from shipping containers

Bharathi Antarctic research station built from shipping containers
The Bharathi Antarctic research station (Photo: bof artchitekten)
The Bharathi Antarctic research station (Photo: bof artchitekten)
View 26 Images
Bharathi Indian Polar Station comprises three floors, built using 134 shipping containers covered by an insulated skin and outer shell (Photo: bof artchitekten)
1/26
Bharathi Indian Polar Station comprises three floors, built using 134 shipping containers covered by an insulated skin and outer shell (Photo: bof artchitekten)
Bharathi is India's third permanent base in Antarctica (Photo: bof artchitekten)
2/26
Bharathi is India's third permanent base in Antarctica (Photo: bof artchitekten)
Bharathi is located on a peninsula in the Larsmann Hills section of northeast Antarctica (Photo: bof artchitekten)
3/26
Bharathi is located on a peninsula in the Larsmann Hills section of northeast Antarctica (Photo: bof artchitekten)
Solar power was ruled out due to the long Antarctic winter's dearth of sunlight (Photo: bof artchitekten)
4/26
Solar power was ruled out due to the long Antarctic winter's dearth of sunlight (Photo: bof artchitekten)
The Bharathi Antarctic research station (Photo: bof artchitekten)
5/26
The Bharathi Antarctic research station (Photo: bof artchitekten)
Punishing local weather conditions include wind gusts of up to 200 mph (321 km/h) (Photo: bof artchitekten)
6/26
Punishing local weather conditions include wind gusts of up to 200 mph (321 km/h) (Photo: bof artchitekten)
Bharathi is India's third permanent base in Antarctica (Photo: bof artchitekten)
7/26
Bharathi is India's third permanent base in Antarctica (Photo: bof artchitekten)
Bharathi is located on a peninsula in the Larsmann Hills section of northeast Antarctica (Photo: bof artchitekten)
8/26
Bharathi is located on a peninsula in the Larsmann Hills section of northeast Antarctica (Photo: bof artchitekten)
Despite the impressive engineering that went into building Bharathi, the locals seem unimpressed (Photo: bof artchitekten)
9/26
Despite the impressive engineering that went into building Bharathi, the locals seem unimpressed (Photo: bof artchitekten)
Punishing local weather conditions feature wind gusts of up to 200 mph (321 km/h) (Photo: bof artchitekten)
10/26
Punishing local weather conditions feature wind gusts of up to 200 mph (321 km/h) (Photo: bof artchitekten)
The facility measures 2,500 sq m (27,000 sq ft) (Photo: bof artchitekten)
11/26
The facility measures 2,500 sq m (27,000 sq ft) (Photo: bof artchitekten)
During Antarctica's summer, Bharathi will be home to roughly 47 researchers, down to 24 in winter (Photo: bof artchitekten)
12/26
During Antarctica's summer, Bharathi will be home to roughly 47 researchers, down to 24 in winter (Photo: bof artchitekten)
Bharathi Indian Polar Station comprises three floors, built using 134 shipping containers covered by an insulated skin and outer shell (Photo: bof artchitekten)
13/26
Bharathi Indian Polar Station comprises three floors, built using 134 shipping containers covered by an insulated skin and outer shell (Photo: bof artchitekten)
Bharathi is located on a peninsula in the Larsmann Hills section of northeast Antarctica (Photo: bof artchitekten)
14/26
Bharathi is located on a peninsula in the Larsmann Hills section of northeast Antarctica (Photo: bof artchitekten)
Architectural drawing (Image: bof artchitekten)
15/26
Architectural drawing (Image: bof artchitekten)
Architectural drawing (Image: bof artchitekten)
16/26
Architectural drawing (Image: bof artchitekten)
Architectural drawing (Image: bof artchitekten)
17/26
Architectural drawing (Image: bof artchitekten)
Architectural drawing (Image: bof artchitekten)
18/26
Architectural drawing (Image: bof artchitekten)
Architectural drawing (Image: bof artchitekten)
19/26
Architectural drawing (Image: bof artchitekten)
A model of the facility was placed in a wind tunnel to aid its design (Photo: bof artchitekten)
20/26
A model of the facility was placed in a wind tunnel to aid its design (Photo: bof artchitekten)
Architectural drawing (Image: bof artchitekten)
21/26
Architectural drawing (Image: bof artchitekten)
Architectural drawing (Image: bof artchitekten)
22/26
Architectural drawing (Image: bof artchitekten)
Architectural drawing (Image: bof artchitekten)
23/26
Architectural drawing (Image: bof artchitekten)
Architectural drawing (Image: bof artchitekten)
24/26
Architectural drawing (Image: bof artchitekten)
Architectural drawing (Image: bof artchitekten)
25/26
Architectural drawing (Image: bof artchitekten)
Architectural drawing (Image: bof artchitekten)
26/26
Architectural drawing (Image: bof artchitekten)
View gallery - 26 images

India's National Center For Antarctic And Ocean Research has commissioned a brand new research station, which has been installed in the Larsmann Hills section of northeast Antarctica. The 2,500 sq m (27,000 sq ft) Bharathi Indian Polar Station was constructed using shipping containers, and allows scientists to conduct their work in safety, despite the punishing local weather conditions.

Bharathi is India's third permanent base in Antarctica. Owing to the rules laid out in the Antarctic Treaty System, the facility is designed so that it can be completely disassembled and removed from the frigid landscape without leaving a trace.

Like Britain's Halley VI research station, Bharathi's remote location requires it to be self-sufficient for long periods of time, and able to withstand extremes in weather which include wind gusts of 200 mph (321 km/h), and temperatures reaching minus 40°F (minus 40°C).

To help meet this challenge, the building was set on stilts and its outer facade shaped (with the aid of a wind tunnel), into a form said to help forestall the buildup of snow drifts.

Despite the impressive engineering that went into building Bharathi, the locals seem unimpressed (Photo: bof artchitekten)
Despite the impressive engineering that went into building Bharathi, the locals seem unimpressed (Photo: bof artchitekten)

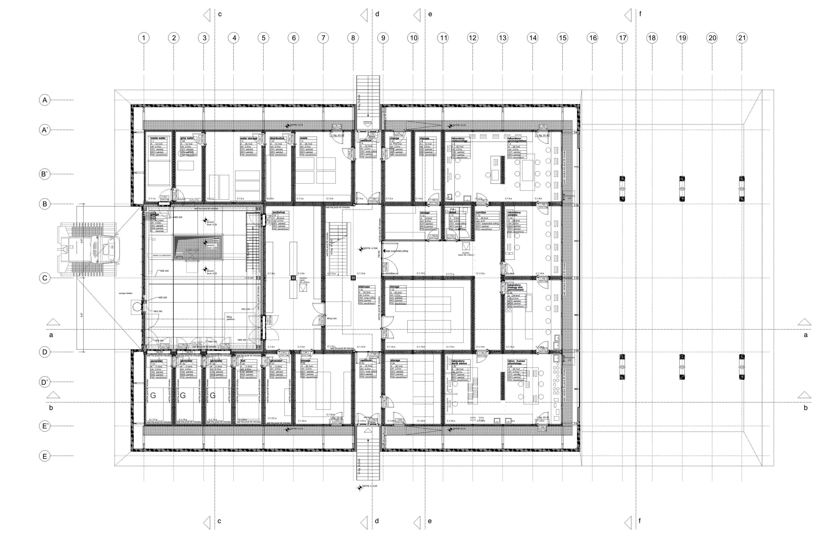
Bharathi comprises three floors, built using 134 shipping containers which were interlocked and covered by an insulated skin and outer shell. The containers were first prefabricated in Germany, before being shipped via Antwerp and Cape Town, and quickly assembled on-site during the short Antarctic summer of late 2011 into 2012.

The third floor features a terrace and air-conditioning system, while the second floor houses the residential quarters, with 24 single and double rooms. Alongside these are a kitchen, dining room, library, fitness room, offices, lounge, and even an operating theater.

It's all business on the ground floor, as here lie the laboratories, storage areas, assorted technical spaces, and workshop. During Antarctica's summer, Bharathi will be home to roughly 47 researchers, while in the harsher winter months this number will fall to 24.

During Antarctica's summer, Bharathi will be home to roughly 47 researchers, down to 24 in winter (Photo: bof artchitekten)
During Antarctica's summer, Bharathi will be home to roughly 47 researchers, down to 24 in winter (Photo: bof artchitekten)

Bharathi's energy is provided by a Combined Heat and Power (CHP) unit, which is powered by stockpiles of kerosene. There are actually a total of three CHP units on site, so as to ensure that an untimely mechanical failure doesn't leave the residents in dire straits.

While in operation, the CHP unit produces surplus heat, and this is sufficient to warm the building. Project partner bof artchitekten told Gizmag that wind power is also being considered as a possible future addition, but solar power was ruled out due to the long Antarctic winter's dearth of sunlight. The building is additionally outfitted with its own fresh water treatment system.

Along with bof artchitekten, the design and construction of the Bharathi Indian Polar Station included IMS Ingenieurgesellschaft mbH and and m+p consulting. Planning began back in 2009, and it was eventually fully completed earlier this year.

Source: bof artchitekten

View gallery - 26 images
7 comments
7 comments
Riaanh
Congratulations to everybody involved, very impressive.
I cannot wait to see the same process repeat itself on Mars or the Moon for that matter.
BigGoofyGuy
It is really nice looking considering it is made from shipping containers. I think it is a 'cool' place to work, pun intended.
Don Duncan
Air-conditioning? Really? No one could design passive cooling? What is the highest temp? 70 degrees? 75?
Didn't GM feature a passive cooled house in Singapore? But it won't work in the Antarctic?
christopher
@Don - LOL - "Air Conditioning" while most places use this to cool down the air, that's not necessarily always the case - as in here, in Antarctica, they don't use it to *cool* the air - they use it to keep it silky smooth - just think "hair conditioning", except for the climate instead.
Slowburn
These building are designed to keep the heat in when it is seriously cold. Take your heavy arctic weather coat and wear it all buttoned up on cool short sleeve day; you will die of heat exhaustion. Passive cooling compromises the insulation, so yes air conditioning.
GRich
U.S. Navy submarines had a similar problem in deep, cold waters causing condensation on the hull, which led to corrosion issues. The condensation problem was solved with air conditioning.
Jason Rioux
This is a very impressive project, one that seems to have been well designed, engineered, and constructed.