Architecture

Prefabricated LM Guest House facade built in two days

Prefabricated LM Guest House facade built in two days
Gizmag interviews senior architect Katherine Chia about the LM Guest House
Gizmag interviews senior architect Katherine Chia about the LM Guest House
View 13 Images
Gizmag interviews senior architect Katherine Chia about the LM Guest House
1/13
Gizmag interviews senior architect Katherine Chia about the LM Guest House
The LM Guest House, which was prefabricated off-site and erected in just two days
2/13
The LM Guest House, which was prefabricated off-site and erected in just two days
LM Guest House features expansive views from every room
3/13
LM Guest House features expansive views from every room
Located in Dutchess County, NY, this 2,000 square foot (185.6 sqm) country retreat captures extensive views across its landscape
4/13
Located in Dutchess County, NY, this 2,000 square foot (185.6 sqm) country retreat captures extensive views across its landscape
Extensive use of wood was a critical design feature of the house
5/13
Extensive use of wood was a critical design feature of the house
Sustainable landscape design strategies were also closely tied to the design of the house
6/13
Sustainable landscape design strategies were also closely tied to the design of the house
The facade of the house was designed as a thermally robust system of high-performance, triple-paned glass units that vary in width from 10 to 20 inches (23-50 cm)
7/13
The facade of the house was designed as a thermally robust system of high-performance, triple-paned glass units that vary in width from 10 to 20 inches (23-50 cm)
This elegant structural solution uses the minimum amount of materials to achieve expansive, open living areas at both ends of the house
8/13
This elegant structural solution uses the minimum amount of materials to achieve expansive, open living areas at both ends of the house
The home features an additional four beds for extra guests
9/13
The home features an additional four beds for extra guests
LM Guest House kitchen with seamless resin surfaces
10/13
LM Guest House kitchen with seamless resin surfaces
LM Guest House by Desai Chia Architecture
11/13
LM Guest House by Desai Chia Architecture
The house integrates a number of sustainable design strategies including geothermal heating and cooling
12/13
The house integrates a number of sustainable design strategies including geothermal heating and cooling
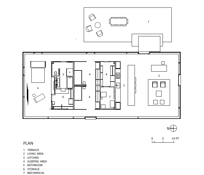
LM Guest House floor plans
13/13
LM Guest House floor plans
View gallery - 13 images

Located in Dutchess County, NY, the LM Guest House is a 2,000 sq ft country retreat that boast a continuous glass facade that was prefabricated off-site and erected in just two days. The compact home also features a series of sustainable measures, including the use of geothermal and solar power, solar shades and recycled rainwater for irrigation. In an email interview, Gizmag spoke to senior architect Katherine Chia from the New York based firm, Desai Chia Architecture, to find out more about the design.

Gizmag: Can you tell us about the LM Guest House brief?

Katherine Chia: The brief requested a compact home with a living room, dining area, large kitchen, bathroom, main bedroom, and an additional four beds for extra guests. The client was very interested in capturing the expansive views of the pond and landscape in a very dramatic way. We discussed a range of strategies that would allow for a continuous glass facade to wrap around the house.

GM: How did you go about capturing these views?

KC: We purposely elevated the house above the rock outcropping to minimize the disruption to the existing terrain. The foundation of the house was carefully pinned to the rock outcropping and all of the utilities were carefully trenched to the underside of the floor slab area. The natural vistas from the rock outcropping are stunning, we took advantage of that and created a very tight core of mechanical spaces. We call this inner zone the work-horse of the house because it really provides all of the mechanical supports for the house in an incredibly compact footprint.

We spent time researching sustainable design strategies and high-performance glass systems in order to create a home that would be both visually compelling and also perform well from a comfort and thermal perspective.

GM: What inspired the design features of the home?

KC: We were definitely inspired by traditional Japanese garden pavilions for the overall concept of the house. Various details in the house were inspired by a range of references. For instance, the bunk bed nooks that sleep four were inspired by European overnight train couchettes. The kitchen and bathroom were inspired by the resin product design projects we were working on at the time (these spaces are sheathed in seamless resin to create a highly durable and luminous environment for cooking and bathing).

GM: Can you briefly describe the sustainable features of the house?

KC: The house integrates a number of sustainable design strategies including geothermal heating and cooling, radiant floors, natural ventilation, motorized solar shades, photovoltaic panels, and rainwater collection for irrigation. Most of these systems can be controlled remotely from the client’s iPad or iPhone so he can monitor the house at any time and balance the heating and cooling requirements seasonally.

Sustainable landscape design strategies were also closely tied to the design of the house. A tight palette of native vegetation highlights vistas and other natural features on the property while also managing storm water run-off. Local bluestone slabs and shale excavated from the site create outdoor seating areas and pathways; a bluestone slab terrace between the house and a nearby grove of pine trees provides an intimate outdoor room for entertaining and dining. Bluestone steps from the terrace lead to a barbeque area and an outdoor shower in the woods.

GM: What did the construction process involve?

KC: The structural design for the house relies on four steel columns imbedded in the wood core; the roof cantilevers out from these four columns. This elegant structural solution uses the minimum amount of materials to achieve expansive, open living areas at both ends of the house. The facade of the house was designed as a thermally robust system of high-performance, triple-paned glass units that vary in width from 10 to 20 feet (6-10 m). The entire assembly was prefabricated off-site, shipped to the site in one container, and erected by crane in two days.

GM: What are your favorite design features of the home?

KC: This project gave us an opportunity to blur the boundaries between inside and out using the continuous glass skin to dematerialize the facade of the house. And yet we still wanted to maintain a clear sense of warmth and proportion to the interior spaces so the extensive use of wood was a critical design feature of the house. We also were determined to bring together a range of sustainable strategies that really supported the thermal performance goals for the house.

GM: What can we expect to see from you in the future?

KC: We are currently working on several commercial projects, a collaboration with an artist on a large-scale installation for a museum in Singapore and several residences. We would like to do more work with cultural and academic institutions and continue to design environments that will inspire creativity and collaboration.

Source: Desai Chia Architecture

View gallery - 13 images
11 comments
11 comments
Chizzy
Great house, but with no solid exterior walls, where do you hang the big flatscreen tv?
Kevin Bingham
Two days to assemble. How many days to pre-build it? What about the time it took to plan it? Build a foundation? Lay in utilities?
It's a great thing, and looks great, and we need more of this. However there's usually more to it.
Alex Angel
@Martin Winlow
They're an architecture firm, not a construction company. That kind of design should be pretty easy to copy, if you want something similar. However, it would take economies of scale for such a house to actually be any cheaper than conventional construction methods.
Kris Lee
Looks very neat.
Lemur
All it needs is a greenroof & a Jacuzzi.
Island Architect
Exceedingly nicely done! A++
But don't tell me that the Farnswoth house or Philip Johnson's house were not inspirations for this.
So what was the program? How many square feet and what was the final cost and how long did it take to build?
Essential data is missing. Of course you used triple glazing but how about recessed thermal roller blankets for the winter.
Sometimes it is very pleasant to sit outside in the shade so one of those canvas awnings and a deck surely could have been worked into the design.
Still very excellent though.
Bill
Hubert Heller
Beautiful!
I want one!
How much did it cost to build?
DonGateley
Give me an option to combine the 6 with the 4 next to it to create a workshop and I want one of these so bad I can taste it.
yrag
People, if you like it, that's fine, but you need to know it's a pretty obvious imitation of Phillip Johnson's famous 1949 Glass House.
See: http://en.wikipedia.org/wiki/Glass_House
Load More