Architecture

One of the world's narrowest houses to be built in Poland

One of the world's narrowest houses to be built in Poland
One of world's narrowest houses will be built in Warsaw as a workplace for Etgar Keret (Photo: Centrala)
One of world's narrowest houses will be built in Warsaw as a workplace for Etgar Keret (Photo: Centrala)
View 7 Images
One of world's narrowest houses will be built in Warsaw as a workplace for Etgar Keret (Photo: Centrala)
1/7
One of world's narrowest houses will be built in Warsaw as a workplace for Etgar Keret (Photo: Centrala)
One of world's narrowest houses will be built in Warsaw as a workplace for Etgar Keret (Photo: Centrala)
2/7
One of world's narrowest houses will be built in Warsaw as a workplace for Etgar Keret (Photo: Centrala)
One of world's narrowest houses will be built in Warsaw as a workplace for Etgar Keret (Photo: Centrala)
3/7
One of world's narrowest houses will be built in Warsaw as a workplace for Etgar Keret (Photo: Centrala)
One of world's narrowest houses will be built in Warsaw as a workplace for Etgar Keret (Photo: Centrala)
4/7
One of world's narrowest houses will be built in Warsaw as a workplace for Etgar Keret (Photo: Centrala)
One of world's narrowest houses will be built in Warsaw as a workplace for Etgar Keret (Photo: Centrala)
5/7
One of world's narrowest houses will be built in Warsaw as a workplace for Etgar Keret (Photo: Centrala)
One of world's narrowest houses will be built in Warsaw as a workplace for Etgar Keret (Photo: Centrala)
6/7
One of world's narrowest houses will be built in Warsaw as a workplace for Etgar Keret (Photo: Centrala)
One of world's narrowest houses will be built in Warsaw as a workplace for Etgar Keret (Photo: Centrala)
7/7
One of world's narrowest houses will be built in Warsaw as a workplace for Etgar Keret (Photo: Centrala)
View gallery - 7 images

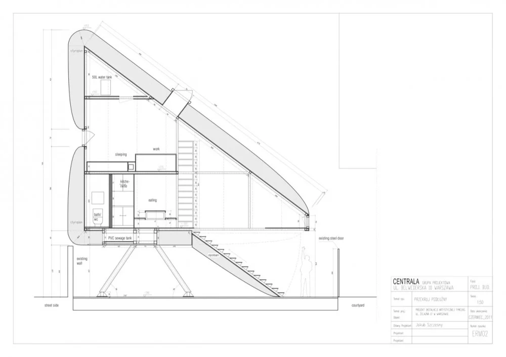
Initially presented in 2009 as a rather eccentric architect's idea, one of the world's narrowest houses will be built in Warsaw, Poland. Referred to as an "impossible house" by its designer Jakub Szczesny of Centrala design studio, the house will be 152 cm (60 in) across in its widest spot on the outside. It's located in the center of Warsaw in a small slot between two buildings, and will be officially defined as an art installation, as it does not meet any legal standards of construction in Poland.

The house's interior width varies from 122 cm to 72 cm (48 - 28 in), with a length of 12 m (39 ft) and two floors. The whole living area measures just 14.5 sq meters (156 sq ft). The house's aim in general is to produce creative work conditions for artists and intellectuals representing various fields. It looks like it might be inhabited on a more permanent basis, however, as it was offered to Israeli writer Etgar Keret as a workplace and hideaway - he has already expressed his desire to live in Warsaw, as it was where his parents met. Thus, the house has been dubbed "Hermitage - Etgar Keret's House."

To save space, Centrala architects designed transformable stairs, which lay flat to serve as a floor on the lowest level when not used as an entrance. Upper floors are accessible via ladders. The house will be fully sufficient as a living place with a mini bathroom and bedroom, featuring sewage and water systems (boat-inspired) and powered via the neighboring building. It's based on a steel frame, finished with plywood insulated sandwich panels and Styrofoam, painted in white both on the inside and outside.

The project is scheduled to begin in September, and has received initial funding of US$53,000 from the Warsaw city council, with further funds to be gathered through donations.

Source: ArchDaily via Gazeta

View gallery - 7 images
5 comments
5 comments
Ruz
Nice piece of art.
Major disadvantages: Only one small window, no natural light. Low air circulation. No car Park. Used as workplace ... ok, where is my desk? Built in the safety space between two building: in case of building movement (small earthquake), it can be crushed or permanently damaged.
Art.
Will, the tink
I love cubby holes, always have since childhood (now in 2nd CH):-) This design cries out for one of those vacuum elevators listed some time ago by Gizmag at http://www.gizmag.com/go/4007/ to access all floors easily. That along with a fire pole for easy exit in case of emergency (although elevator can return to ground level without power.) Another thing, why limit ones self to such cramped quarters when it could have been designed square? It mentions use of boat-designed means to take care of water and sewage. If you are already tapping into neighbor electricity, why not water and sewage as well? It would make life a lot easier. It could use a little more natural light as well. Mentions insulation but no heat. I suppose that small a space could be made comfortable via small electric heater. I\'m not a writer but not having Internet would drive me crazy. Perhaps a strategically-placed wifi antenna if available? Maybe I\'m not thinking simple enough. Coffee shop Internet might suffice.
BigGoofyGuy
Not some thing a claustrophobic person would want to stay at but it is a very creative use of space.
Charles Bosse
I particularly like the stairway that leads out to a path blocked on both ends by a concrete wall. Why not just bivouack to the side of a building if that\'s your fancy?
Jim M
It may not be the ideal living space, but as an artwork, it certainly does open the debate about how much space we actually need to live in.
Ecologically, large rambling country homes located far from services are a disaster. Small units in the thick of things make much more sense. Lower energy requirements, shorter commutes, mass transport systems and more all add up to a smaller environmental footprint.
However, another unforseen advantage is that with less space available, would you buy half the junk that you currently have, since there is nowhere to store it?