Norwegian architecture firm Jarmund/Vigsnæs Arkitekter (JVA) recently completed a cabin situated some 1,200 m (3,937 ft) above sea level in Norway's rugged Okstindan mountain range. The Rabot Tourist Cabin is one of many official DNT (Norwegian Trekking Association) cabins scattered around the country, and shelters hikers from the harsh local weather conditions.
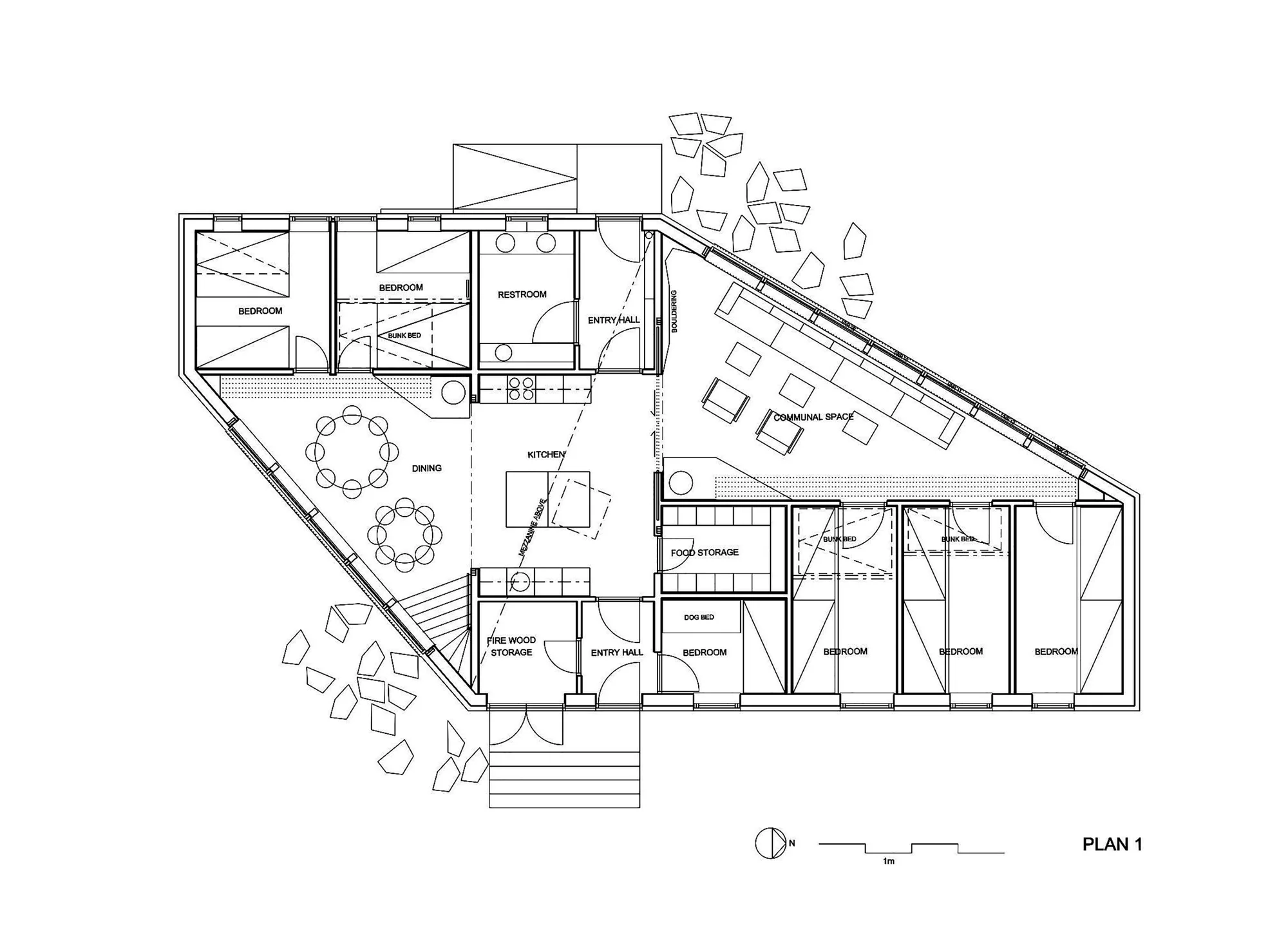
Taking its name from the late French glaciologist and geographer Charles Rabot, the Rabot Tourist Cabin measures 70 sq m (753 sq ft) and has a capacity of around 30 beds, which are divided into seven dormitory-style bedrooms. The cabin also contains two restrooms, a kitchen area, dining room, a mezzanine, two common areas, and storage rooms containing food and firewood.

JVA installed two efficient wood burners, which cater for all heating needs. Since energy-efficiency takes on a new level of significance when one is required to transport all goods via helicopter (there's no road access to the site), half of the building can be closed off with sliding doors when there are few guests, so that there's less space to heat. In addition, a solar array provides electricity for lighting.
Owing to its location, the Rabot Tourist Cabin will be battered by some very harsh weather, but the cabin's windows are calibrated to withstand high-altitude pressure forces so that they do not suddenly shatter, and the exterior cladding is made from thick locally cut timber boards.
However, a second, smaller rescue hut currently is being built nearby that will serve as an emergency shelter should the main cabin somehow be damaged or destroyed.
Source: JVA via Arch Daily