Architecture

Archiblox prefab home uses "a fraction" of the energy it generates

Archiblox prefab home uses "a fraction" of the energy it generates
The Archiblox Archi+ Carbon Positive House produces more energy than it uses
The Archiblox Archi+ Carbon Positive House produces more energy than it uses
View 9 Images
The Archiblox Archi+ Carbon Positive House produces more energy than it uses
1/9
The Archiblox Archi+ Carbon Positive House produces more energy than it uses
The Archiblox Archi+ Carbon Positive House covers an area of 53 sq m (570 sq ft)
2/9
The Archiblox Archi+ Carbon Positive House covers an area of 53 sq m (570 sq ft)
The kitchen of the Archiblox Archi+ Carbon Positive House
3/9
The kitchen of the Archiblox Archi+ Carbon Positive House
The Archiblox Archi+ Carbon Positive House has modular cabinetry
4/9
The Archiblox Archi+ Carbon Positive House has modular cabinetry
The Archiblox Archi+ Carbon Positive House has an internal vegetable garden
5/9
The Archiblox Archi+ Carbon Positive House has an internal vegetable garden
The Archiblox Archi+ Carbon Positive House has double-glazed and thermally broken windows
6/9
The Archiblox Archi+ Carbon Positive House has double-glazed and thermally broken windows
A view into the bathroom of the Archiblox Archi+ Carbon Positive House
7/9
A view into the bathroom of the Archiblox Archi+ Carbon Positive House
A diagram of the sustainability oArchiblox Archi+ Carbon Positive House
8/9
A diagram of the sustainability oArchiblox Archi+ Carbon Positive House
Archiblox Archi+ Carbon Positive House
9/9
Archiblox Archi+ Carbon Positive House
View gallery - 9 images

Prefab houses can be quick and affordable to build. Now, a prefab house from Australian architects Archiblox promises the additional benefit of generating more energy than it uses. The Archi+ Carbon Positive House has a variety of sustainability features, including a green roof and a solar array.

Archiblox says the house is the "world's first carbon positive prefabricated house," by which it means the first prefab house to be energy positive. It has to be said that Gizmag has covered other houses whose designers might dispute that claim, such as the Odooproject and more recently, the P.A.T.H. range. Nonetheless, the sustainability credentials of the Archi+ appear to have been considered down to the last detail.

To begin with, the Archi+ makes use of passive design – features that work with the surrounding environment to the benefit of the house. Shades on the outside of the house, for example, are used to help keep it cool during the summer, but can be retracted in winter to help with heating. Floor-to-ceiling sliding glass doors, meanwhile, maximize sun penetration during winter and can be opened during the summer.

The Archiblox Archi+ Carbon Positive House has an internal vegetable garden
The Archiblox Archi+ Carbon Positive House has an internal vegetable garden

The house uses a "buffer zone" to help moderate its temperature. The northernmost section of the structure is separated via an interior wall and has a depth that is enough to keep the hot temperatures from the high angle of the summer sun contained from the rest of the house. The lower angle of the winter sun, meanwhile, allows it to reach through to the main body of the house.

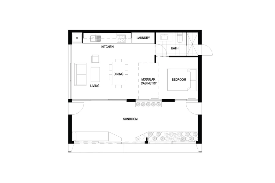
The Archi+ has a small footprint of 53 sq m (570 sq ft) into which it squeezes a bedroom, bathroom, living area, kitchen, dining area, laundry nook, modular cabinetry and a sun-room. Its small size minimizes the amount of electricity and heating energy required.

Cross-flow ventilation uses the prevailing breezes from the south to bring fresh air into the house through underground piping before expelling old air from high north-facing windows. The windows themselves are double-glazed, thermally broken and have draft-proof seals, all of which helps to minimize heat loss.

The Archiblox Archi+ Carbon Positive House has modular cabinetry
The Archiblox Archi+ Carbon Positive House has modular cabinetry

Archiblox can't provide Gizmag with air tightness figures, but does say that the house is designed to be be as airtight as possible. Likewise, there is no information available as to exactly how much energy the houses uses, other than to say that it's a fraction of the 15-21 kWh that the 5 KW roof-mounted solar panels produce each day. Any surplus energy generated is fed back into the grid.

Amongst the other green features of the house are the sustainably-sourced materials from which it is built and the finishes (such as glue and paint) that are free of formaldehyde and volatile organic compounds. The green roof helps to insulate the house, and an internal vegetable garden is watered with recycled grey water.

The Archi+ was recently installed for display in Melbourne's City Square and costs from AU$260,000 (US$205,000).

Source: Archiblox

View gallery - 9 images
9 comments
9 comments
Deadpan
99/100 is a fraction as well. Stop using that word to describe a small representative amount of something.
SteveMc
Very well planned design, one of the best I've seen recently. FROM $200K+ though? Someone needs to screw the nut on these passive miracle homes and start to understand that if they are not reasonably priced using more realistic materials, then they are not going to be purchased by the masses. That is what we need to make a difference to our environment. There is absolutely no future in a select few architects and their circle of financially very comfortable friends having the odd passive home stuck in the middle of a normal street.
Aaryn Johansen
$260K.... Pffft When will the architects pull their head from where the sun doesn't shine. What they have just proven is that there is a significant cost to sustainable living and that it is out of reach for most Australian families and individuals. What would have been more productive was to supply a thermally efficient shell which could be fitted out with cheap or high end materials and finishings. I can't see this small home concept moving forward unless a shell can be produced and sold for around 50K. Leave it up to the buy to fit out where they could use recycled materials which could be cheaper and are not necessarily poor quality. I would score this 45/100. Looks good, Nothing new and does not solve any problems associated with sustainable housing.
MarkF
I'd rather have an earth sheltered Hobbit hole myself. The only question really is how expensive would the extra bracing with concrete cost. Plus its nasty concrete and not environmentally renewable plantation timber.
John in Brisbane
I like the article but agree with the posters - too expensive. They've gone for the premium market first, which might be smart in some ways but they've ignored all the intervening price points. This design lends itself to multiple scenarios...
1. A basic shell that's installed on site, off grid and is slowly finished by people either living there or coming on the weekend. Well under $100k. Maybe $60k, fitted for - but not with - anything. Suits people buying a block out of town. No solar, no insultation, just a lock-up shell,
2. A complete house that can be moved into but which has none of the good stuff installed and only basic fittings and pleasant but cheaper materials. Ready to live in but you're installing the solar etc at your convenience.
3. This model. High spec, everything included. Might be their best bet for early adopter types but it's excluding most potential buyers.
The concept is good but they need to provide other pathways for people to get to the finished product or whatever proportion of it they're prepared to buy or slowly install.
Sagraia
Good intentions but really a small house for a big price. The Original Twist Eco-house was properly priced out and delivers a big house for a small price ... http://originaltwist.com/2014/03/29/eco-house-delivered-in-a-day-cheap-too/
Germano Pecoraro Designer
I agree with the previous comments on the high cost of this passive housealso because there is so determined to want to force the use of wood, which is not so environmentally friendly because often comes from deforested areas of the planet.
I also have doubts about the actual functioning of the house in the summer months: someone really thinks to isolate a home only with grass?
And the plants in the greenhouse, hanging on the walls? With the humidity as we do?
It seems a suitable solution to cold climates, but not to temperate climates or warm: it is as if something is missing in this project
kmccune
This is interesting,but you have to be kidding right ?this just proves small saves energy and you can get many of the the same benefits for a fifth of the cost or better yet dig a hole for an eigth of the cost.Use raw wood and few inexpensive solar panels and of course if you are above ground use cool tubes and interior installation of patio doors.etc. Alas, it seems a lot of these green things are designed to be toys of the rich Hippie crowd,so dream on poore people.
Andy Lemann
In response to the previous posters, check out greenyflat.com.au which details a small infill house in Mittagong, NSW. The 2 bedroom, 57sqm Greeny Flat cost $130,000 to build and, over it's first ten months, has exported to the grid 3.5 times as much energy as it has imported from the grid. It is also healthy, comfortable, low maintenance, fire resistant, water conserving, elderly friendly, recyclable, and within walking distance of all services including a railway station.
Or Google "Glenn and Lee Robinson's house in Bundanoon". Glenn and Lee have built a new, energy positive house and granny flat for $1500/sqm. Same fundamentals as the Greeny Flat, different look and lower price.
Both projects prove that building energy positive houses doesn't have to be complex and expensive.