Architecture

Experimental cold climate house built in Japan

Experimental cold climate house built in Japan
Kengo Kuma & Associates has designed an experimental house in Hokkaido, Japan called "Même"
Kengo Kuma & Associates has designed an experimental house in Hokkaido, Japan called "Même"
View 19 Images
Sectional view of the experimental house
1/19
Sectional view of the experimental house
Roof Plan of the experimental house
2/19
Roof Plan of the experimental house
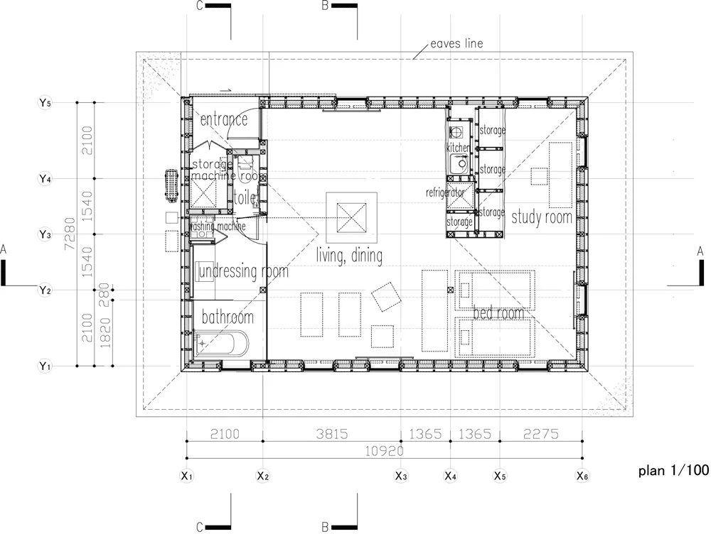
Plan diagram of the experimental house
3/19
Plan diagram of the experimental house
The bathroom is placed within a glass area in the corner of the building
4/19
The bathroom is placed within a glass area in the corner of the building
The Japanese larch frame is exposed through the translucent material
5/19
The Japanese larch frame is exposed through the translucent material
The semi-transparent facade material permits natural indoor lighting throughout the year
6/19
The semi-transparent facade material permits natural indoor lighting throughout the year
The semi-transparent facade encourages natural daylight working hours for occupants
7/19
The semi-transparent facade encourages natural daylight working hours for occupants
The experimental house construct recalls a barn typology
8/19
The experimental house construct recalls a barn typology
The experimental house is located on the 185,000 sq.mt. (1,991,323.4 sq. ft.) Même Meadows research facility
9/19
The experimental house is located on the 185,000 sq.mt. (1,991,323.4 sq. ft.) Même Meadows research facility
The Même experimental house will continue to test the limits of both internal and external architecture in extreme environments
10/19
The Même experimental house will continue to test the limits of both internal and external architecture in extreme environments
The Même experimental house is 79.5 sq. mt. (855.7 sq.ft.) in area
11/19
The Même experimental house is 79.5 sq. mt. (855.7 sq.ft.) in area
Use of radiant floor heat in the Même experimental house, according to Kengo Kuma, should only be necessary every few days
12/19
Use of radiant floor heat in the Même experimental house, according to Kengo Kuma, should only be necessary every few days
The building has a luminous glow when viewed from the outside at night
13/19
The building has a luminous glow when viewed from the outside at night
The customized membrane is composed of polyester fluorocarbon tarp on the outside with a glass-fiber cloth membrane on the interior, and finally, polyester insulation from recycled PET bottles in-between
14/19
The customized membrane is composed of polyester fluorocarbon tarp on the outside with a glass-fiber cloth membrane on the interior, and finally, polyester insulation from recycled PET bottles in-between
A central fireplace radiates heat throughout the entire space
15/19
A central fireplace radiates heat throughout the entire space
The structure is designed for cold climates and is based upon the local “Chise” (House of the Earth)
16/19
The structure is designed for cold climates and is based upon the local “Chise” (House of the Earth)
The house uses modern materials for an insulated double skin membrane that promotes convection and maintains a comfortable internal environment
17/19
The house uses modern materials for an insulated double skin membrane that promotes convection and maintains a comfortable internal environment
The design encourages natural daylight working hours for the occupants, in addition to providing a luminous glow when the building is viewed from the outside at night
18/19
The design encourages natural daylight working hours for the occupants, in addition to providing a luminous glow when the building is viewed from the outside at night
Kengo Kuma & Associates has designed an experimental house in Hokkaido, Japan called "Même"
19/19
Kengo Kuma & Associates has designed an experimental house in Hokkaido, Japan called "Même"
View gallery - 19 images

Japanese architectural firm Kengo Kuma & Associates recently demonstrated its ethos of design inspired by light and nature with an experimental house in Hokkaido called "Même." The structure is designed for cold climates and whilst based upon the local Ainu people's “Chise” (House of the Earth), it uses modern materials for an insulated double skin membrane that promotes convection and maintains a comfortable internal environment due to heat circulation from its continually lit fire.

The traditional “Chise” housing insulates and recovers heat from a central fire, and uses bamboo grass or sedge for facade insulation, wrapped around a wooden frame. The Même experimental house has adapted that principle.

The design team at Kengo Kuma built the 79.5 sq.mt. (855.7 sq.ft.) house frame from Japanese Larch, then incorporated their customized membrane composed of polyester fluorocarbon tarp on the outside, with a glass-fiber cloth membrane on the interior. Finally, polyester insulation from recycled plastic bottles was installed in between.

A central fireplace radiates heat throughout the entire space
A central fireplace radiates heat throughout the entire space

The Même experimental house facade not only ensures natural ventilation through the materials used, but is also semi-transparent to permit natural indoor lighting throughout the year. The design also encourages natural daylight working hours for the occupants, in addition to providing a luminous glow when the building is viewed from the outside at night.

The experimental house is located on the 185,000 sq.mt. (1,991,323 sq.ft.) Même Meadows research facility – established for studying design responses to the region's harsh climate – and will continue to test the limits of both internal and external architecture in extreme environments.

It was completed with support from the Tomonari Yashiro Laboratory at the University of Tokyo’s Institute of Industrial Science.

Source: Kengo Kuma & Associates via arcspace

View gallery - 19 images
5 comments
5 comments
Todd Dunning
That is a cool, forward-looking technology. It doesn't need greenwashing; it just works.
Gregg DesElms
But... wait...
...I'm sorry, but... it's just a tent. I mean, yes, I understand all the ways it's technically not. But, c'mon. Is this not a classic "please don't pee on my leg and then tell me it's raining" moment? It's a tent.
Who wants to live in a tent?
Kwazai
I know the paper floors in okinawa had a plenum of sorts for a burning lump of coal exhaust 'duct' to heat the floors. Is this one similar in function/style? The coal was on the outside basically in a little pit connected to the foundation.
Jimbo Jim
The chimney pipe inside the house could do a couple of loops as it delay the heat from going out in a hurry. Perhaps also build a better heat exchanger around the furnace will retain more heat too.
JAT
Unless it has fans in the ceiling all the heat will rise and the floor area will be cold.