Tiny Houses

Clever unit turns Tokyo bedsit into adaptable partitioned apartment

Clever unit turns Tokyo bedsit into adaptable partitioned apartment
Tsukiji Room H is a bedsit in Tokyo that uses a central unit to partition the room and adapt it between work and sleep configurations (Photo: Katsumi Hirabayashi)
Tsukiji Room H is a bedsit in Tokyo that uses a central unit to partition the room and adapt it between work and sleep configurations (Photo: Katsumi Hirabayashi)
View 12 Images
Tsukiji Room H is a bedsit in Tokyo that uses a central unit to partition the room and adapt it between work and sleep configurations (Photo: Katsumi Hirabayashi)
1/12
Tsukiji Room H is a bedsit in Tokyo that uses a central unit to partition the room and adapt it between work and sleep configurations (Photo: Katsumi Hirabayashi)
Sliding doors hide the bed and the storage space below it (Photo: Katsumi Hirabayashi)
2/12
Sliding doors hide the bed and the storage space below it (Photo: Katsumi Hirabayashi)
Opening the doors gives the more a more spacious and relaxed feeling (Photo: Katsumi Hirabayashi)
3/12
Opening the doors gives the more a more spacious and relaxed feeling (Photo: Katsumi Hirabayashi)
A hammock provided additional space for relaxing or sleeping (Photo: Katsumi Hirabayashi)
4/12
A hammock provided additional space for relaxing or sleeping (Photo: Katsumi Hirabayashi)
The bathroom is hidden from most of the apartment (Photo: Katsumi Hirabayashi)
5/12
The bathroom is hidden from most of the apartment (Photo: Katsumi Hirabayashi)
Additional freestanding storage is used in the apartment (Photo: Katsumi Hirabayashi)
6/12
Additional freestanding storage is used in the apartment (Photo: Katsumi Hirabayashi)
There is also more storage about the kitchen units (Photo: Katsumi Hirabayashi)
7/12
There is also more storage about the kitchen units (Photo: Katsumi Hirabayashi)
A utility room provides more storage space (Photo: Katsumi Hirabayashi)
8/12
A utility room provides more storage space (Photo: Katsumi Hirabayashi)
The room is sparsely furnished with exposed fittings (Photo: Katsumi Hirabayashi)
9/12
The room is sparsely furnished with exposed fittings (Photo: Katsumi Hirabayashi)
The available space wraps around the central unit in a "U" shape: on one side are the kitchen and utility area, whilst on the other are the entrance hallway, bathroom entrance and bed (Photo: Katsumi Hirabayashi)
10/12
The available space wraps around the central unit in a "U" shape: on one side are the kitchen and utility area, whilst on the other are the entrance hallway, bathroom entrance and bed (Photo: Katsumi Hirabayashi)
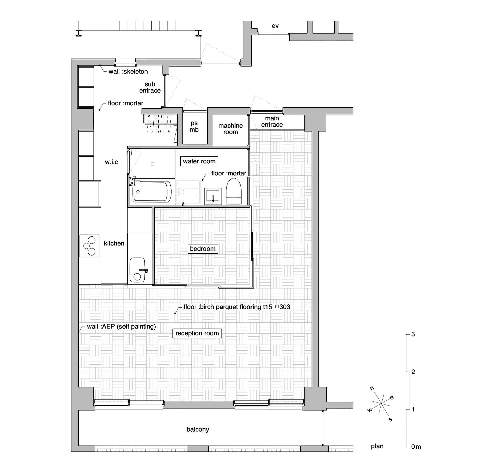
Floor plan (before)
11/12
Floor plan (before)
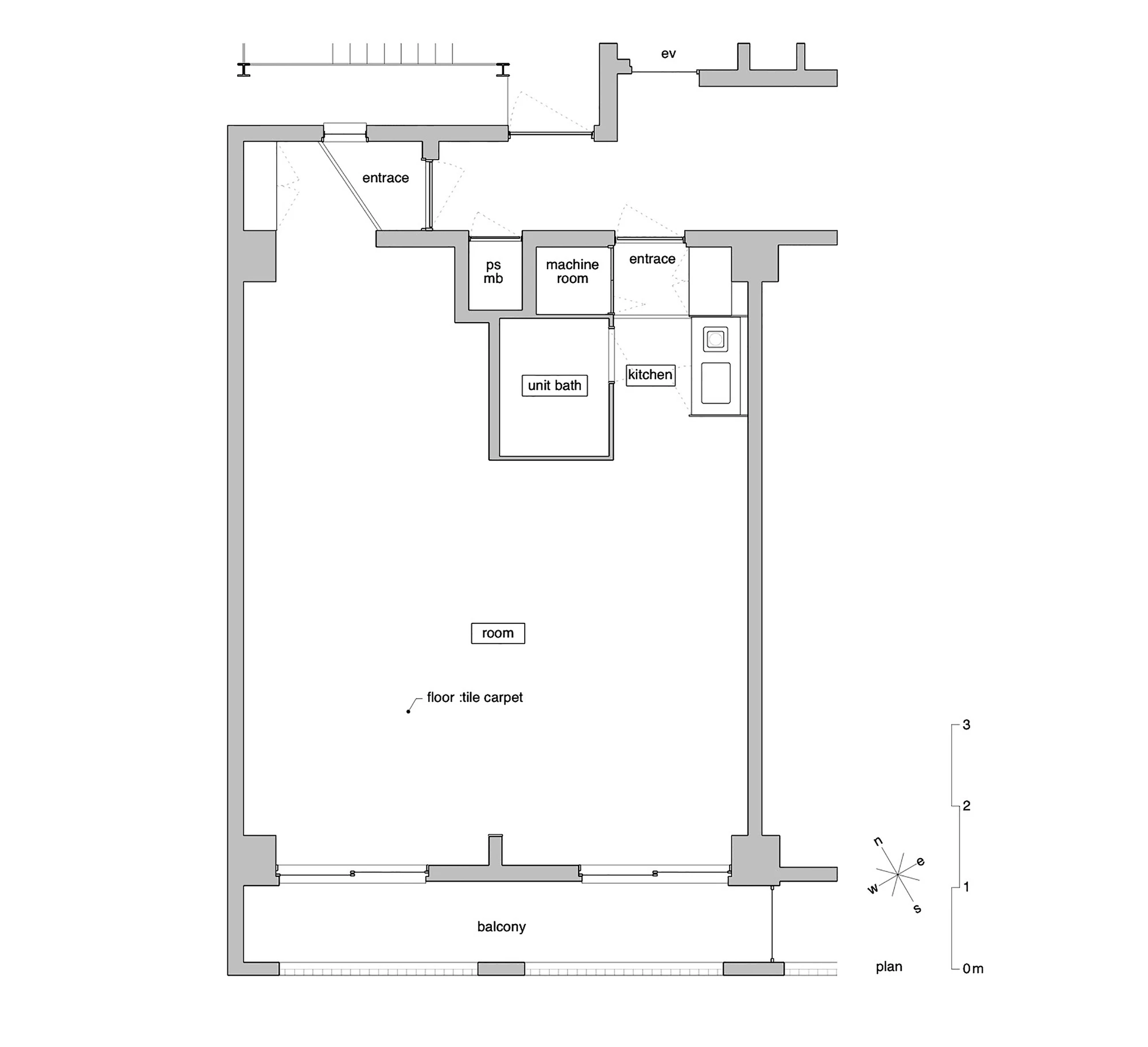
Floor plan (after)
12/12
Floor plan (after)
View gallery - 12 images

Making good use of a small room often needs clever thinking. Designs like the All I Own House and Kitoko Studio's maid's room conversion in Paris use sliding furniture to reconfigure space as required. A Tokyo bedsit does the same and to the same effect, but in a much simpler way.

Tsukiji Room H, designed by Yuichi Yoshida & Associates, has a floorspace of 47.6 sq m (511.8 sq ft), which is comparable to that of the All I Own House. It is designed as a single dwelling that can also be used as an office. A large, multifunctional central unit is used to give the sense of separate sections within the space.

The available space wraps around the central unit in a "U" shape. On one side are the kitchen and utility area, whilst on the other are the entrance hallway, bathroom entrance and bed. The bed and bathroom are contained within the unit and can therefore remain hidden from sight.

Opening the doors gives the more a more spacious and relaxed feeling (Photo: Katsumi Hirabayashi)
Opening the doors gives the more a more spacious and relaxed feeling (Photo: Katsumi Hirabayashi)

With the entrance to the bathroom being in the entrance hallway, it is naturally out of sight from most of the apartment and therefore quite discrete. The bed, however, is built into the corner of the unit and is therefore highly visible. To combat this, sliding wooden doors have been installed around the bed allowing it to be hidden during the day or when entertaining guests.

In addition to changing the use and feel of the space, the sliding doors also hide storage drawers below the bed. More shelving storage is provided around the top of the central unit, in freestanding units elsewhere in the apartment and above the kitchen units. The clearly sectioned nature of the room and its sparse furnishing allow it to be easily adapted as is required at any given time.

Tsukiji Room H was completed in September of this year.

Source: Yuichi Yoshida & Associates

View gallery - 12 images
1 comment
1 comment
Mark Salamon
I think I would probably prefer a Murphy Bed to provide more space in a smaller interior such as this.