Architecture

Car enthusiast's home accommodates classic auto collection

Car enthusiast's home accommodates classic auto collection
The Autohaus is located in Austin, Texas
The Autohaus is located in Austin, Texas
View 23 Images
The Autohaus is located in Austin, Texas
1/23
The Autohaus is located in Austin, Texas
The Autohaus measures 4,088 sq ft (379 sq m)
2/23
The Autohaus measures 4,088 sq ft (379 sq m)
The Autohaus includes a large outdoor deck space atop the garage
3/23
The Autohaus includes a large outdoor deck space atop the garage
The Autohaus' residence is located upstairs
4/23
The Autohaus' residence is located upstairs
The Autohaus' residence looks relatively compact for a high-end architect-designed home
5/23
The Autohaus' residence looks relatively compact for a high-end architect-designed home
The Autohaus' kitchen and lounge area
6/23
The Autohaus' kitchen and lounge area
Inside the Autohaus' office
7/23
Inside the Autohaus' office
The Autohaus' bathroom
8/23
The Autohaus' bathroom
Looking down on the Autohaus' garage area
9/23
Looking down on the Autohaus' garage area
The Autohaus is located in Austin, Texas
10/23
The Autohaus is located in Austin, Texas
The Autohaus measures 4,088 sq ft (379 sq m)
11/23
The Autohaus measures 4,088 sq ft (379 sq m)
The Autohaus' residence is located upstairs
12/23
The Autohaus' residence is located upstairs
"A collaborative design and construction process was key to the project. The Matt Fajkus Architecture team worked with the general contractor, Risinger Homes, to design, fabricate, and install the large custom steel doors and windows," explains the firm
13/23
"A collaborative design and construction process was key to the project. The Matt Fajkus Architecture team worked with the general contractor, Risinger Homes, to design, fabricate, and install the large custom steel doors and windows," explains the firm
"A makeshift steel fabrication and paint shop was temporarily set up inside the partially-built garage during construction. The doors and windows were built in-house on the ground floor before their installation in its floating living quarters," adds Matt Fajkus Architecture
14/23
"A makeshift steel fabrication and paint shop was temporarily set up inside the partially-built garage during construction. The doors and windows were built in-house on the ground floor before their installation in its floating living quarters," adds Matt Fajkus Architecture
Inside the Autohaus' office
15/23
Inside the Autohaus' office
The Autohaus includes vintage air-cooled Porsches, a Fiat, and a Ferrari
16/23
The Autohaus includes vintage air-cooled Porsches, a Fiat, and a Ferrari
The Autohaus' garage is used for the maintenance, display and storage of classic cars
17/23
The Autohaus' garage is used for the maintenance, display and storage of classic cars
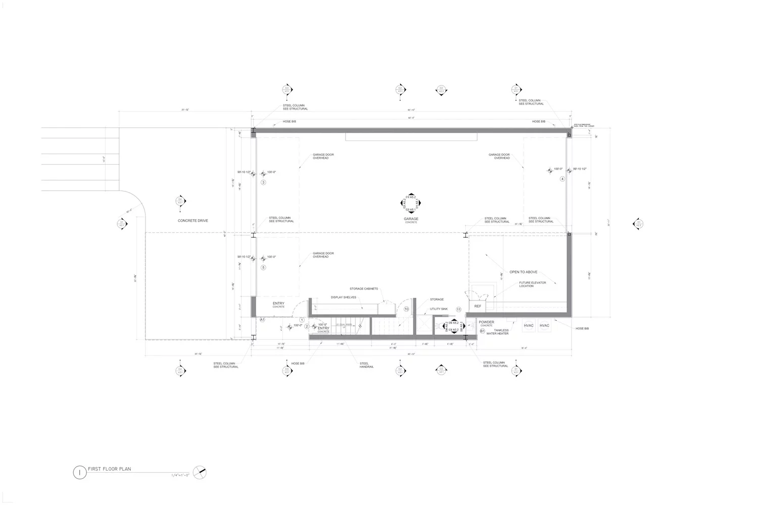
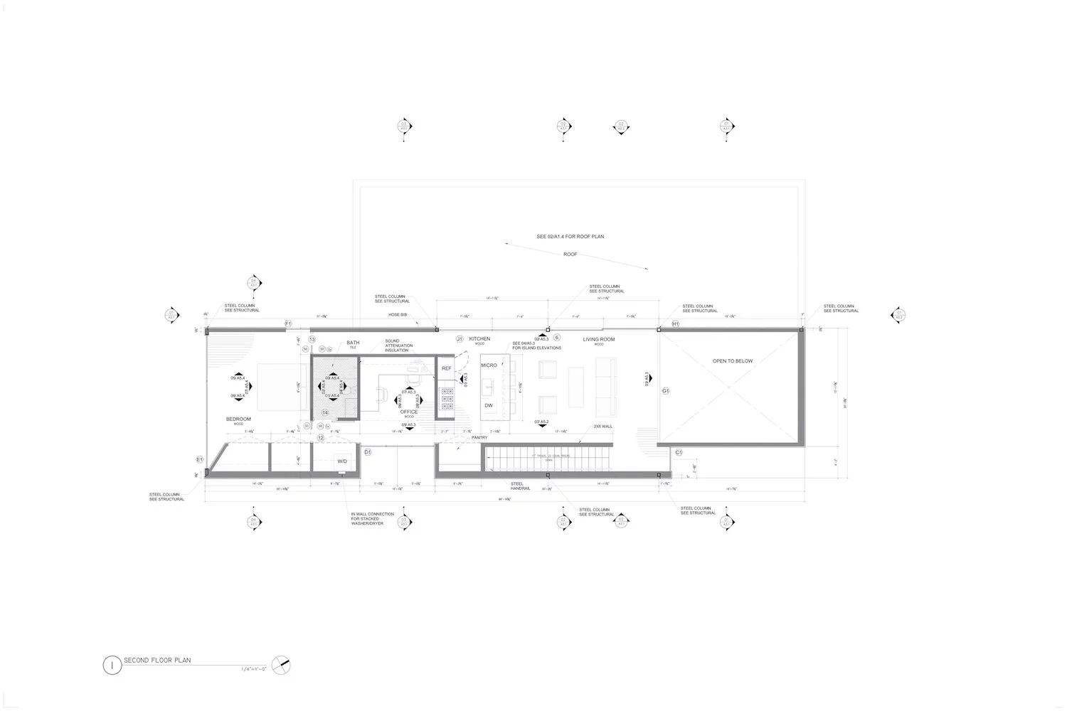
Architectural drawing of the Autohaus
18/23
Architectural drawing of the Autohaus
Architectural drawing of the Autohaus
19/23
Architectural drawing of the Autohaus
Architectural drawing of the Autohaus
20/23
Architectural drawing of the Autohaus
Architectural drawing of the Autohaus
21/23
Architectural drawing of the Autohaus
Architectural drawing of the Autohaus
22/23
Architectural drawing of the Autohaus
Construction of the Autohaus
23/23
Construction of the Autohaus 
View gallery - 23 images

The recently-completed Autohaus, by Texas-based Matt Fajkus Architecture, is a house made for a car enthusiast that, like BIG's Villa Gug, centers around the owner's collection of classic autos. The home's entire ground floor is taken up by garage space, while the living quarters jut outwards above.

The Autohaus is located in Austin, Texas, and comprises a total floorspace of 4,088 sq ft (379 sq m), largely taken up by the garage, which is used for the storage, repair, and display of the owners' vintage cars, including Porsches, a Fiat, and a Ferrari. Looking at the photos, there are a couple of motorbikes in there, too.

The living quarters cantilever a total of 20 ft (7 m) over the garage space. Judging by the photos, it appears relatively small inside for a high-end architect-designed home and contains a single bedroom, a snug office, bathroom, living area, and a kitchen. You get the impression that the owner spends most of their free time downstairs tinkering with old engines.

Steel and glass sliding doors open up the living space to a large roof terrace atop the garage. It's shaded by tree canopies and looks like a pleasant outdoor living area.

The Autohaus' kitchen and lounge area
The Autohaus' kitchen and lounge area

The project required some custom work that was carried out on-site during construction. "A makeshift steel fabrication and paint shop was temporarily set up inside the partially-built garage during construction," explains the firm. "The doors and windows were built in-house on the ground floor before their installation in its floating living quarters."

"The second-floor volume is shifted forward to allow for double-height views to the garage space at the back, while creating an everyday carport beneath the hovering bed chamber in the front."

Source: Matt Fajkus Architecture

View gallery - 23 images
6 comments
6 comments
Captain Danger
Sweet Check out the floor in the garage! I doubt the owner does much tinkering. He has to spend most of the time cleaning and polishing!
MerlinGuy
Sorry, must have missed it. Where's the vomitorium?
McDesign
A dream! A garage with and attached house.
ljaques
How DO architects make a living? I'm with Merl.
Doug Nutter
MerlinGuy, you can't see it but it's just around the corner where he keeps the customized Valiant with the Comet drive train. It has bucket seats and came in Puke Green and the optional Throw Up Top. Old but still relevant. <g>
BlueOak
What's up with the bottom trim on the glass wall in photo 4? Appears to be run out of alignment.
Of course any proper garage must have a Big Ass Fan.