Architecture

Covert House hides in plain sight

Covert House hides in plain sight
Covert House, by DSDHA, was completed in 2014 (Photo: Hélène Binet)
Covert House, by DSDHA, was completed in 2014 (Photo: Hélène Binet)
View 22 Images
The home measures 135 sq m (1,453 sq ft) (Photo: Hélène Binet)
1/22
The home measures 135 sq m (1,453 sq ft) (Photo: Hélène Binet)
The interior decor of Covert House is beautifully brutal and dominated by unfinished cast concrete (Photo: Hélène Binet)
2/22
The interior decor of Covert House is beautifully brutal and dominated by unfinished cast concrete (Photo: Hélène Binet)
Covert House boasts a number of sustainable features (Photo: Hélène Binet)
3/22
Covert House boasts a number of sustainable features (Photo: Hélène Binet)
The firm mentions a rainwater harvesting system and solar panels, plus a heat recovery system (Photo: Hélène Binet)
4/22
The firm mentions a rainwater harvesting system and solar panels, plus a heat recovery system (Photo: Hélène Binet)
Its sunken profile will help with maintaining a steady interior temperature (Photo: Hélène Binet)
5/22
Its sunken profile will help with maintaining a steady interior temperature (Photo: Hélène Binet)
Covert House, by DSDHA, was completed in 2014 (Photo: Hélène Binet)
6/22
Covert House, by DSDHA, was completed in 2014 (Photo: Hélène Binet)
The exterior is dominated by white finished concrete, mirrors, and glass (Photo: Hélène Binet)
7/22
The exterior is dominated by white finished concrete, mirrors, and glass (Photo: Hélène Binet)
The interior will please lovers of brutalism (Photo: Hélène Binet)
8/22
The interior will please lovers of brutalism (Photo: Hélène Binet)
The home is captured beautifully by famed architectural photographer Hélène Binet (Photo: Hélène Binet)
9/22
The home is captured beautifully by famed architectural photographer Hélène Binet (Photo: Hélène Binet)
Inside Covert House (Photo: Hélène Binet)
10/22
Inside Covert House (Photo: Hélène Binet)
The firm states that its environmental performance is in line with the exacting Passivhaus standards (Photo: Hélène Binet)
11/22
The firm states that its environmental performance is in line with the exacting Passivhaus standards (Photo: Hélène Binet)
Covert House is shortlisted for a RIBA housing award (Photo: Hélène Binet)
12/22
Covert House is shortlisted for a RIBA housing award (Photo: Hélène Binet)
Skylights help soften the interior and ensure it doesn't look like a war bunker (Photo: Hélène Binet)
13/22
Skylights help soften the interior and ensure it doesn't look like a war bunker (Photo: Hélène Binet)
The home measures 135 sq m (1,453 sq ft) (Photo: Hélène Binet)
14/22
The home measures 135 sq m (1,453 sq ft) (Photo: Hélène Binet)
The home is captured beautifully by famed architectural photographer Hélène Binet (Photo: Hélène Binet)
15/22
The home is captured beautifully by famed architectural photographer Hélène Binet (Photo: Hélène Binet)
East elevation (Image: DSDHA)
16/22
East elevation (Image: DSDHA)
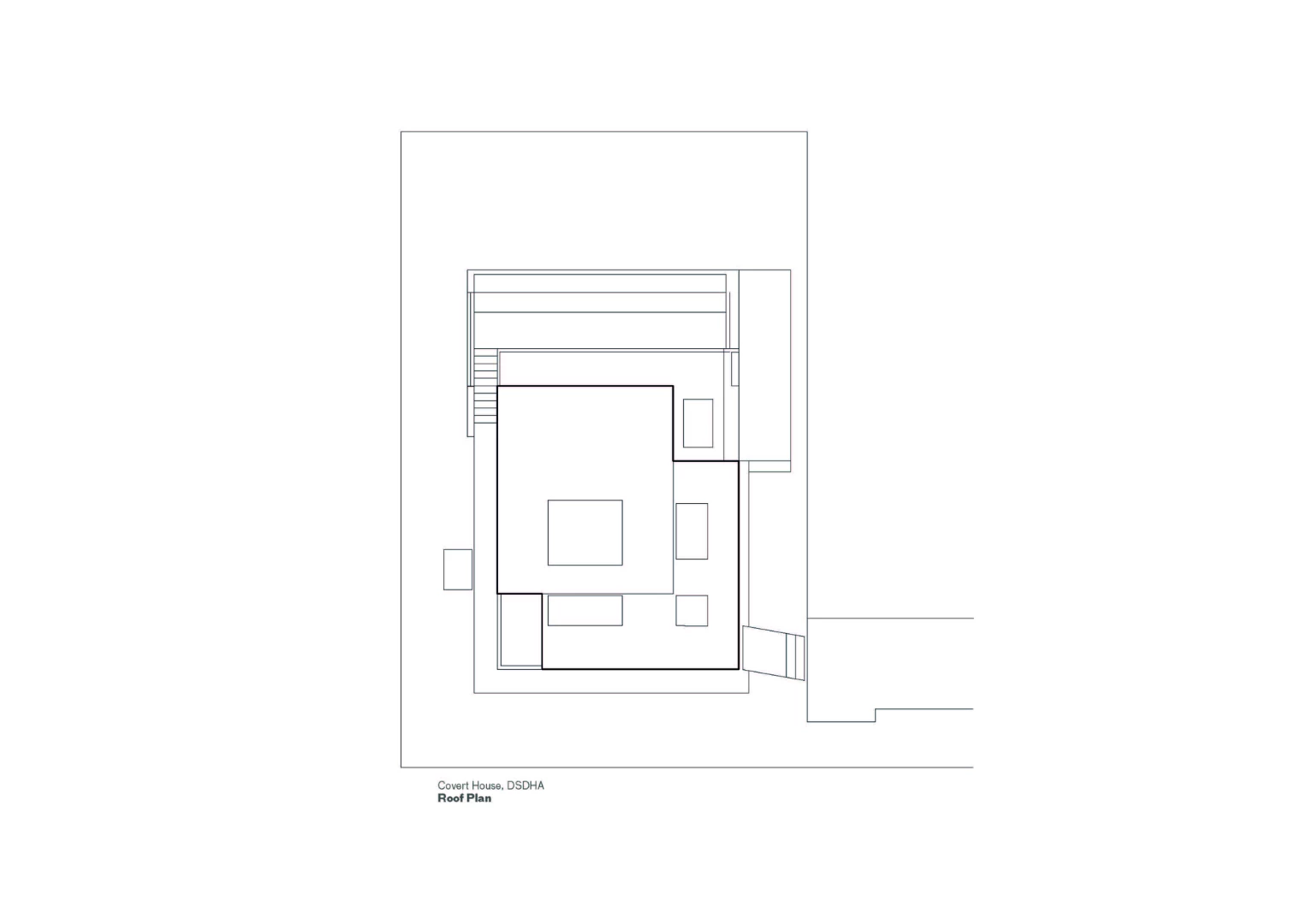
Roof plan (Image: DSDHA)
17/22
Roof plan (Image: DSDHA)
North elevation (Image: DSDHA)
18/22
North elevation (Image: DSDHA)
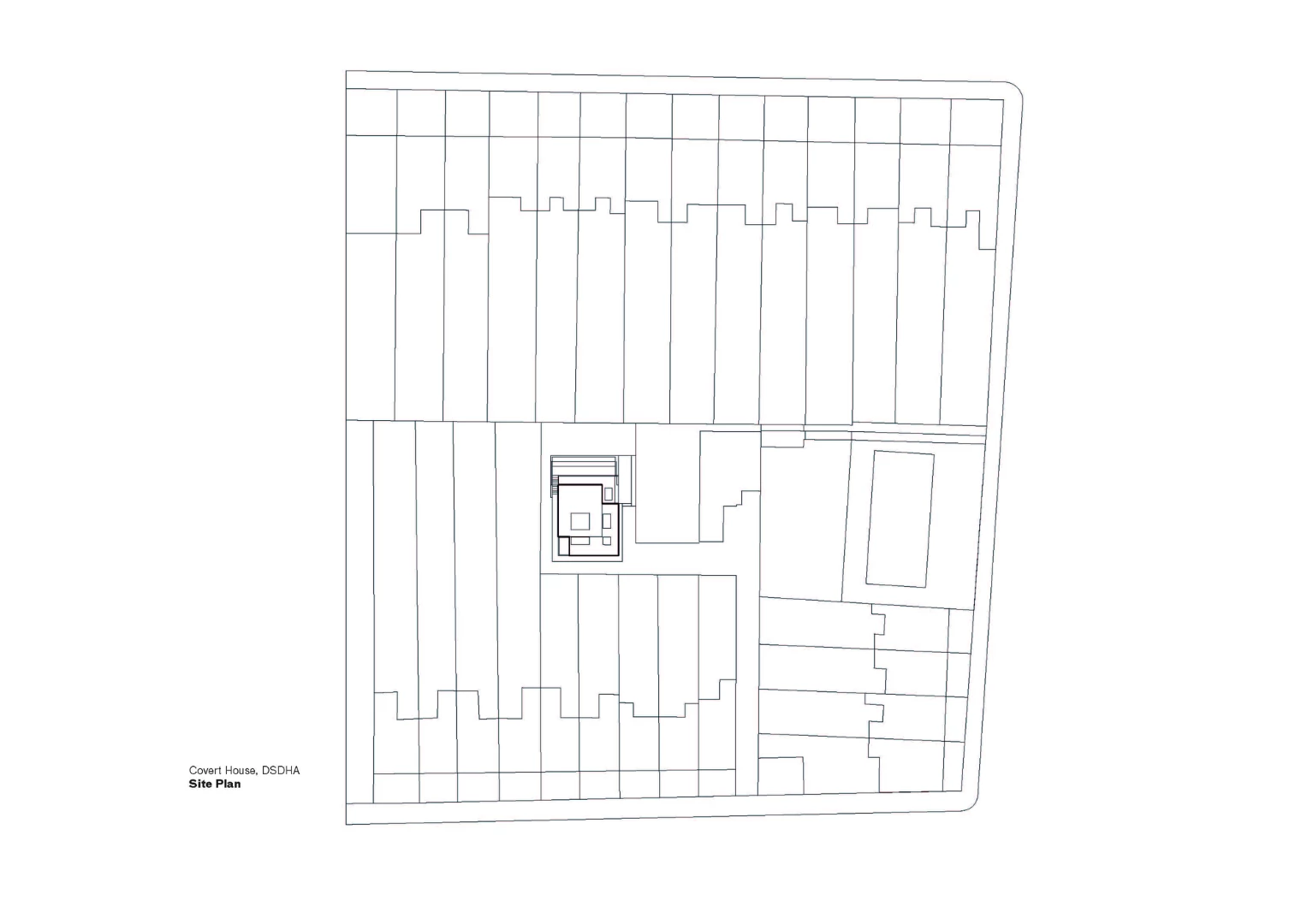
Site plan (Image: DSDHA)
19/22
Site plan (Image: DSDHA)
South elevation (Image: DSDHA)
20/22
South elevation (Image: DSDHA)
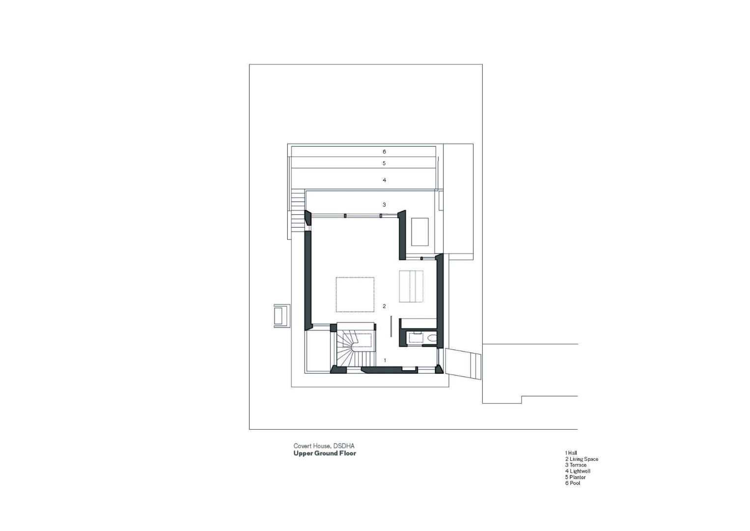
Upper floor (Image: DSDHA)
21/22
Upper floor (Image: DSDHA)
West elevation (Image: DSDHA)
22/22
West elevation (Image: DSDHA)
View gallery - 22 images

In a bid to reduce the visual impact of a modern family home located within a conservation area in London, local architecture firm DSDHA sunk half of the residence into the ground and covered much of the rest with glass and mirrors. The result is a partially camouflaged building suitably named Covert House, which also boasts sustainable features that include rainwater collection and solar panels.

The two story family residence was completed in 2014, and is located in Clapham Old Town, London. Presumably, the local definition of a conservation area can't be too strict if an unusual modern home can be built within it, but by sinking Covert House into the ground, DSDHA certainly reduced its visual impact for the occupants of surrounding residences.

Measuring 135 sq m (1,453 sq ft), the interior decor of Covert House is beautifully brutal and dominated by unfinished cast concrete, which contrasts with stark white detailing in a way captured particularly well by famed architectural photographer Hélène Binet. Plenty of natural daylight is on offer thanks to well-placed skylights, and the exterior also sports the same white finish in places, in addition to the glazing.

The home measures 135 sq m (1,453 sq ft) (Photo: Hélène Binet)
The home measures 135 sq m (1,453 sq ft) (Photo: Hélène Binet)

As of writing, DSDHA hasn't yet got back to us with our request for detailed information, but Covert House's sustainable technology includes a rainwater harvesting system, solar panels, and a heat recovery system. In addition, its sunken profile helps maintain a steady interior temperature in the lower part of the house, and the firm states that the home's environmental performance is in line with the exacting Passivhaus standards.

Covert House is shortlisted for a RIBA housing award.

Source: DSDHA via Arch Daily

View gallery - 22 images
4 comments
4 comments
liui
Will it be prone to bird strikes?
Jay Finke
Flooding would be my concern
Douglas Bennett Rogers
Flooding isn't normally a problem in a basement, outside of a flood plain. Bad grade is the most common problem and can be fixed by minor regrading. A check valve can be used for sewer backups but this really needs to be fixed by the jurisdiction. A sump pump can take care of excess water in the foundation drainage system. Partial below grade is the most economical energy improvement, as it adds significant space.
bergamot69
Hmmm, looks like the kind of cold brutalist bunker that architects mainly build to appeal to other architects, much like bodybuilders bulk themselves up mainly to compete for the admiration of other men.
And although I 'get' the concept of a partially concealed dwelling, nonetheless with its huge expanses of glass, the occupants would probably feel anything but hidden.