Carving out a niche between the all-terrain Ford Transit camper van and the oversized Ford F-Series expedition motorhome, Nevada startup AEONrv presents a compact Class C Ford expedition rig. Its titular motorhome pairs a one-ton Ford van chassis with a custom composite living pod built to Silicon Valley-grade tech standards for full off-grid, four-season wilderness exploration and living.
Perhaps the ultimate way of slicing ties with the grid, wintering well away from the crowds of civilization and deleting the word "Omicron" from your vocabulary, the AEONrv attempts to find the sweet spot between capable, nimble all-terrain driving and smart, self-sufficient base camping. It's meant to do so at a price point that isn't quite as intimidating as the average overland RV — although that price point will still require many buyers to sell all their worldly belongings and call RV "home."
The AEONrv is the latest answer to the dissatisfaction some feel with what they see as cheap, shoddy work coming out of the Indiana-based American RV establishment. The company counts various Silicon Valley startup executives among its leadership, advertising more than 60 years of combined software and tech experience.

"AEONrv was born from my own frustration with what I perceived as the lack of quality and innovation in RVs built by the traditional manufacturers," AEON CEO Jim Ritchie explained during the company's introduction in October. "The RVs I looked at purchasing were constructed with low-quality plywoods and plastics using staples and other flimsy fasteners that tend to fall apart over time. I thought we can build something far more durable and rugged yet appealingly modern and sophisticated, and we’ll figure out how to do it at a price point that customers appreciate."
In place of those mass-market materials, AEONrv builds its Transit-mounted box out of insulated fiberglass reinforced panels, industrial adhesives and marine-grade components. Insulated doors, dual-pane acrylic windows and thermal transfer-free construction methods help to keep the A/C-cooled air in during the summer, the heat in during the winter.

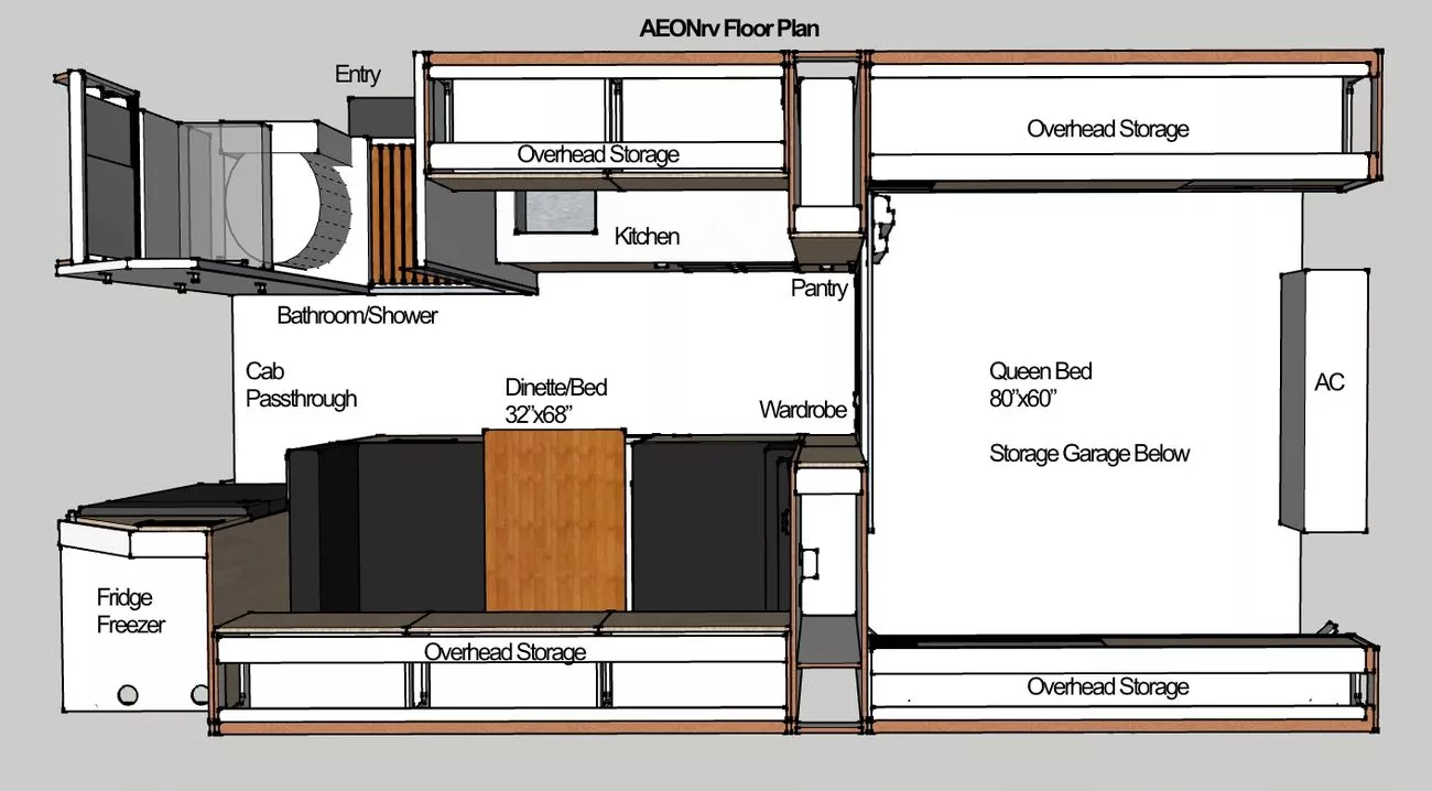
The AEONrv interior is designed for two adults and up to two children. The floor plan skips popular solutions like a sleeper alcove, pop-up roof and drop-down bed in favor of a compact, straightforward layout that starts with a raised 60 x 80-in (152 x 203-cm) full-queen rear bed. Kids sleep amidships on the 68-in (173-cm)-long bed that converts over from the dual-bench dinette.
The dinette bed starts as a single but can optionally expand into a 48-in (123-cm)-wide double. The two front-facing dinette seats serve as the rear passenger seats during the drive, ensuring that the AEONrv can transport the same family of four it sleeps at night. The versatile, fully adjustable table doubles as a mobile work station, positioning as a sit-down or standing desk.
Across the aisle from the dinette, the flexible kitchen keeps counter space open with a portable, indoor/outdoor induction cooker that can be stowed away when not in use. A 150-L fridge/freezer in the driver-side front corner, overhead cupboards, under-counter drawers and cabinets, and an adjacent slide-out pantry provide plenty of space for food, cookware, utensils and other kitchen essentials. A small overhead microwave is available optionally.

In front of the main kitchen block, the AEONrv houses a wet bath cell with indoor/outdoor shower, flip-up sink and cassette toilet. The bathroom doubles as a mudroom for storing and drying wet clothes and gear.
All-season off-grid capability is integral to the AEONrv's purpose and design, and it all starts with an 8.2-kWh self-heating LiFePO4 battery pack charged via 700 watts of Victron solar panels and 1.5-kW alternator charging, optionally upgradeable to 5.5-kW/24-V alternator charging. Campers monitor and control the electrical system through Victron's Cerbo GX interface, using an onboard touchscreen or mobile device. AEON also plans to launch an integrated, smart home-style full-camper control system in the future.
Air conditioning, heat and hot water systems team to create a comfortable interior environment all year long. Fresh water stores in a 250-L tank, and gray water finds its way to a 106-L freeze-protected holding tank before getting dumped.
AEONrv builds atop a Ford Transit AWD one-ton SRW cutaway chassis with 306-hp 3.5-L EcoBoost V6, 10-speed automatic transmission and 3.73 limited-slip axle. The build includes a Van Compass 2-in lift kit, custom heavy-duty front coil springs, custom-tuned rear shocks, BFGoodrich All Terrain T/A KO2 tires, a custom rear bumper, a differential skid plate, a rear-facing exterior LED light bar, and rear-wall L-track for mounting traction boards, shovels and other equipment.

The AEONrv's US$184,500 base price is competitive with comparable all-wheel expedition Class C's like the Winnebago Ekko and Rossmönster Baja and also off-road camper van models such as the Winnebago Revel and Airstream Interstate 24X. AEONrv plans to begin deliveries in Q1 2022.
It may be focused heavily on getting its first product to market, but AEONrv is already thinking about the future in terms of a more electrified class of expedition vehicle. It intends to use its experience with the Transit platform as a potential jumping off point toward developing an E-Transit-based RV or possibly a hybrid.
The 40-minute walkthrough video below provides a thorough look at the features of the AEONrv exterior and interior.
Source: AEONrv