Architecture

Modular off-the-grid cabin lands in the outback

Modular off-the-grid cabin lands in the outback
Melbourne-based architectural studio Modscape has created a modern off-the-grid home that took twelve weeks to complete
Melbourne-based architectural studio Modscape has created a modern off-the-grid home that took twelve weeks to complete
View 8 Images
The 64 sq m (689 sq ft) home was built with a fully welded steel frame, structural insulated panels, double glazed windows and a Zincalume skin
1/8
The 64 sq m (689 sq ft) home was built with a fully welded steel frame, structural insulated panels, double glazed windows and a Zincalume skin
Tintaldra home is a single-module cabin which was prefabricated in Melbourne before being transported to its rural location
2/8
Tintaldra home is a single-module cabin which was prefabricated in Melbourne before being transported to its rural location
Tintaldra home was designed to be low maintenance and one hundred percent autonomous
3/8
Tintaldra home was designed to be low maintenance and one hundred percent autonomous
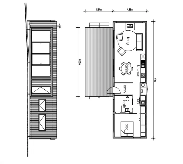
The home's interior features an open plan living and dining area, built-in wall kitchen, European laundry, double bedroom, bathroom and storage space
4/8
The home's interior features an open plan living and dining area, built-in wall kitchen, European laundry, double bedroom, bathroom and storage space
Melbourne-based architectural studio Modscape has created a modern off-the-grid home that took twelve weeks to complete
5/8
Melbourne-based architectural studio Modscape has created a modern off-the-grid home that took twelve weeks to complete
Ensuring minimal impact on the environment the home is also fitted with rooftop solar panels, a septic tank, rainwater tank and LED lighting
6/8
Ensuring minimal impact on the environment the home is also fitted with rooftop solar panels, a septic tank, rainwater tank and LED lighting
The modest home was specially designed to blend into its natural landscape
7/8
The modest home was specially designed to blend into its natural landscape
Tintaldra floorplan by Modscape
8/8
Tintaldra floorplan by Modscape
View gallery - 8 images

Modscape, the architectural studio responsible for the Cliff House concept, has created a modern off-the-grid home that took twelve weeks to complete. Located on the southern banks of the Murray River, in Victoria, Australia, the Tintaldra home is a single-module cabin that was prefabricated in Melbourne before being transported to its rural location.

"The construction process involved a 12 week off-site build in the Modscape factory, after which the home was transported to site and installed in one day," Jan Gyrn, managing director of Modscape tells Gizmag.

The modest home was specially designed to blend into its natural landscape while also being low maintenance and one hundred percent autonomous in order to suit the owners extended periods away.

The modest home was specially designed to blend into its natural landscape
The modest home was specially designed to blend into its natural landscape

"We wanted the dwelling to disappear into the landscape, so a cladding system was subsequently developed to create a salvaged, shed-like exterior, consisting of a base layer of new Zincalume and a top layer of recycled Zincalume which was applied for effect," says Gyrn.

The 64 sq m (689 sq ft) standalone home was built with a fully welded steel frame, structural insulated panels, double glazed windows and the aforementioned exterior facade made up of a Zincalume skin and clad with recycled corrugated iron, which was sourced from various salvage yards around Melbourne. Ensuring minimal impact on the environment, the home is also fitted with rooftop solar panels, a septic tank, rainwater tank and LED lighting.

The home's interior features an open plan living and dining area, built-in wall kitchen, European laundry, double bedroom, bathroom and storage space. The living space features oak timber flooring, a wood fire heater and floor-to-ceiling glass sliding doors that open onto an outdoor deck, extending the home with an additional 31 sq m (334 sq ft) of al fresco dining.

"The home features a compact yet functional open plan layout, which is divided into two distinct zones that are connected by the front entry,” says Gyrn. “As the home is designed within a compact footprint, the opportunity to maximize space was integral and influenced the inclusion of a single line kitchen and laundry, outdoor shower and large external decking.”

The Tintaldra home is one of the smallest home's Modscape has built to date and cost AUD$192,000 excluding GST (approximately US$168,000) to complete. The firm is dedicated to building bespoke prefabricated homes and is optimistic about the future of this market.

"Small spaces become an exercise in mastering space optimization and, as such, quality rather than quantity becomes the focus," says Gyrn. "As the prefabrication industry in Australia continues to expand and evolve, there will be greater opportunities to for us to experiment and push the boundaries in design and modular technology across residential and commercial sectors. New innovation is always on our horizon."

Source: Modscape

View gallery - 8 images
12 comments
12 comments
Robert Walther
This 'off the grid' claim seems somewhat pointless. As for 'blending in' with the landscape', it would fit in perfectly in as a scrap yard waste bin. 12 weeks construction? What, one guy tinkering in the evening? It looks like a trailer, but costs the same as about three of such. Hopefully the structure is better than it looks, but it still looks like an uglier than usual recycled container.
Michael Flower
Price is a little on the steep side for what is essentially two standard Cargo Containers welded together. Unless all Self-Contained Power Supply System is included?
Dax Wagner
Couldn't agree more, Robert. And at US$243/square foot, what's the point?
ccdog
Seems a little goofy this trend of "small" homes that are "green", the greenest thing they could do is recycle one of the many existing trailers that are available. Maybe upgrade the insulation and update the mechanical systems to be more efficient. But the hipster idea of build a shed and call it a home, or build a super expensive trailer is caused by them not getting out to the real world for a bit before they need to express themselves. Who funds this junk?
Kyle McHattie
Sorry but this builder is so far behind the times and this article is completely out dated. Tiny homes, including those made from containers, have been around for years and they emphasize living simpler. This home could have been made for 1/10 the price listed. Ridiculous.
aajay
I agree with all of the above. What's the point in making a expensive tiny house? I would think the stand alone system which would probably have a genset backup and ample battery storage could easily eat up 50k. I can't see the structure costing more than 100k. It could be built onsite quicker with a pre-fab steel frame.
Completely missed the mark and a decade behind where micro architecture is today.
johanschaller
Robert, if you were familiar with the region this house is in, you'd understand that it fits perfectly with its environment. The aesthetic is similar to shearing sheds, barns and farm outbuildings.
I'm sure if you wanted it to look like a spaceship that had just landed in a paddock, Modscape could probably do that for you as well.
Rockxman
Hey everyone. Thanks for all the negativity. I suppose everyone posting lives in Australia and knows what things cost. I guess every single person on the planet knows about Tiny Homes, small spaces, and the feasibility off off-grid living. AND, it is so important that your tastes and sense of style is more important than anyone else. I am happy to see some free publicity promoting sustainable lifestyles. Perhaps if more people were building small, prices would decrease as well. This is not a do-it-yourselfer build by amateurs, without building code standards and inspectors. FYI, there is a concept called economies of scale, which will always impact construction costs. Thanks for the article Bridget. I know many people will enjoy it.
Don Duncan
I see three big drawbacks. Price, remember, shipping is not included. No insulation figures are given, making it hard to tell how much it will cost to heat/cool. And last, but important where water is scarce, why not use a compost toilet?
What is the life of systems?
In the construction time spent, an earth home could be built with passive solar design requiring no heat/cooling. These last forever.
Cyndysub
This is TLTL.
Load More