Architecture

Off-the-grid container house in Mexico is move-in ready in 99 days

Off-the-grid container house in Mexico is move-in ready in 99 days
The VMD tiny home is an eco-conscious dwelling that is built using shipping-containers
The VMD tiny home is an eco-conscious dwelling that is built using shipping-containers
View 21 Images
Studioroca and Taller Escape have created an innovative prefabricated housing model that is move-in ready in just 99 days
1/21
Studioroca and Taller Escape have created an innovative prefabricated housing model that is move-in ready in just 99 days
The VMD tiny home is an eco-conscious dwelling that is built using shipping-containers
2/21
The VMD tiny home is an eco-conscious dwelling that is built using shipping-containers
The VMD master bedroom comes fully furnished
3/21
The VMD master bedroom comes fully furnished
The 30-sq-m (323-sq-ft) tiny home offers a complete off-the-grid living package
4/21
The 30-sq-m (323-sq-ft) tiny home offers a complete off-the-grid living package
The modern kitchen comes with ample storage
5/21
The modern kitchen comes with ample storage
The VMD comes move-in ready with a complete interior furniture package designed by Studioroca
6/21
The VMD comes move-in ready with a complete interior furniture package designed by Studioroca
All furniture is sourced from local Mexican makers
7/21
All furniture is sourced from local Mexican makers
The VMD prefabricated house comes in either a single or double bedroom model and boasts a simple turn-key design
8/21
The VMD prefabricated house comes in either a single or double bedroom model and boasts a simple turn-key design
The VMD home is designed as a low-fuss abode or weekend getaway
9/21
The VMD home is designed as a low-fuss abode or weekend getaway
Exterior decking is ideal for spending time outdors
10/21
Exterior decking is ideal for spending time outdors
The VMD home can be installed in just seven days, while leaving very little impact on the site
11/21
The VMD home can be installed in just seven days, while leaving very little impact on the site
The VMD incorporates a strong focus on sustainability and reducing its ecological footprint
12/21
The VMD incorporates a strong focus on sustainability and reducing its ecological footprint
The interior walls and panels have been fitted with thermal and acoustic insulation
13/21
The interior walls and panels have been fitted with thermal and acoustic insulation
The interior of the single bedroom VMD model features a simple layout with open living area
14/21
The interior of the single bedroom VMD model features a simple layout with open living area
The VMD features a modern angular kitchen with meals area
15/21
The VMD features a modern angular kitchen with meals area
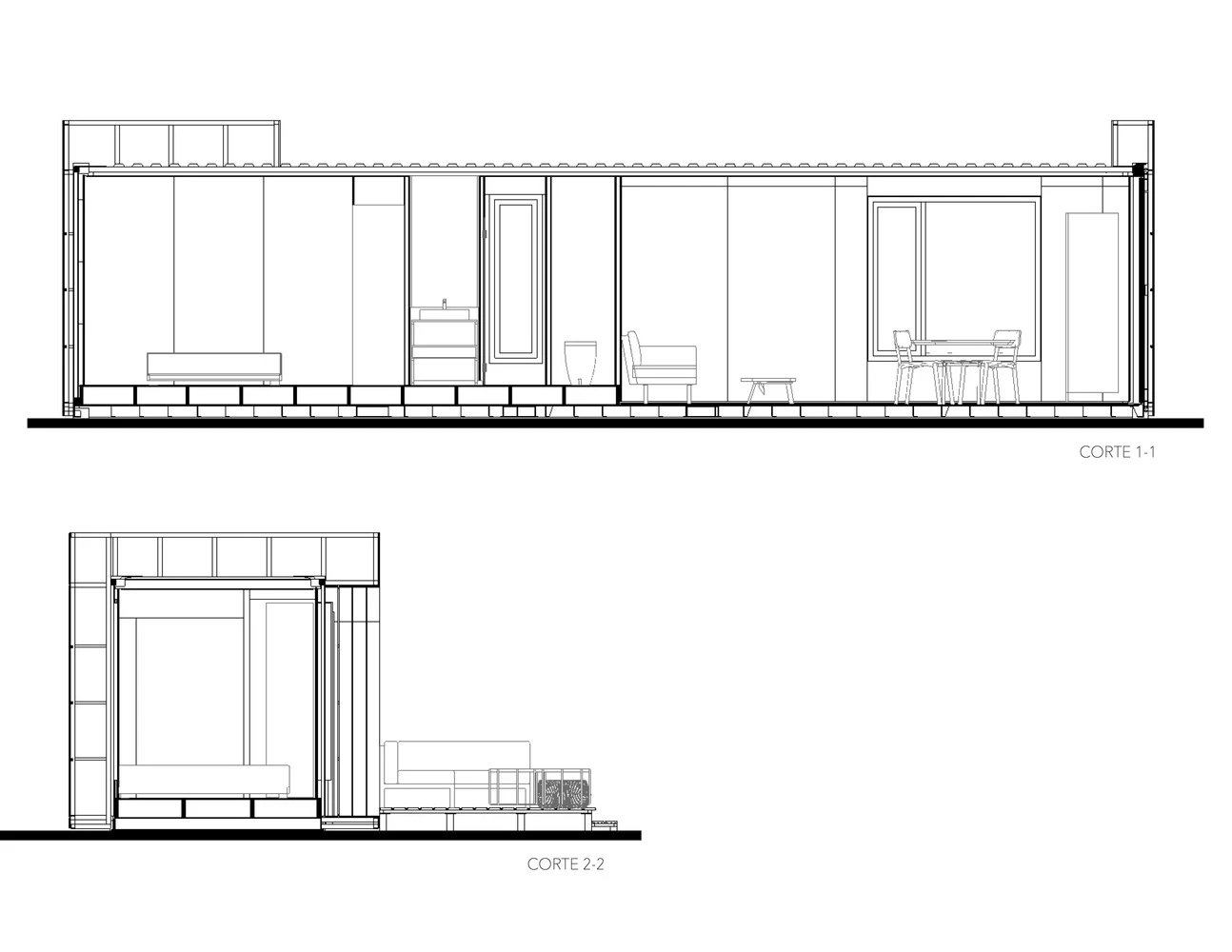
Interior VMD floor-plan by Studioroca and Taller Escape
16/21
Interior VMD floor-plan by Studioroca and Taller Escape
Exterior plans of the VMD model
17/21
Exterior plans of the VMD model
The VMD house by Studioroca and Taller Escape
18/21
The VMD house by Studioroca and Taller Escape
The VMD floorplan by Studioroca and Taller Escape
19/21
The VMD floorplan by Studioroca and Taller Escape
The VMD's shower
20/21
The VMD's shower
The VMD's master bedroom boasts large floor-to-ceiling glass windows, bringing in the outdoors in
21/21
The VMD's master bedroom boasts large floor-to-ceiling glass windows, bringing in the outdoors in
View gallery - 21 images

Mexican architectural studios Studioroca and Taller Escape have recently joined forces to create a prefabricated housing model that is move-in ready in just 99 days from ordering. Dubbed VMD, the 30-sq-m (323-sq-ft) tiny home is an eco-conscious dwelling that is built using shipping-containers and offers a complete off-the-grid living package.

The inspiration for the simple and cost-effective design of the dwelling came from the architects' desire to create a home that could re-connect city-dwellers with the beautiful natural Mexican landscape, while also incorporating a strong focus on sustainability and reducing the ecological footprint of the home. The VMD home is thus designed as a low-fuss abode or weekend getaway that can be installed in just seven days, while leaving very little impact on the site.

“VMD is an invitation to find a balance between daily life and weekend escapes, coming into contact with nature; Mexico is a country famous for its biodiversity and its unparalleled landscapes, in our quest to increase the experience of living it VMD becomes the synthesis of freedom where retirement is only a short trip away,” says the Taller Escape studio.

The VMD home can be installed in just seven days, while leaving very little impact on the site
The VMD home can be installed in just seven days, while leaving very little impact on the site

The VMD prefabricated house comes in either a one or two bedroom model and boasts a simple turn-key design, complete with interior furniture package. The home is built with a strong shipping container structure, which allows the dwelling to be easily transported to its destination via a truck and then craned into position, without the need for complex foundations or lengthy terrain preparations.

The VMD comes with internal reinforcements to provide greater structural strength and longevity, plus low maintenance external cladding. The interior walls and panels have been fitted with thermal and acoustic insulation, allowing the home to maintain constant interior temperatures throughout the year.

The VMD prefabricated house comes in either a single or double bedroom model and boasts a simple turn-key design
The VMD prefabricated house comes in either a single or double bedroom model and boasts a simple turn-key design

The interior of the single bedroom VMD model features a simple layout, which includes a master bedroom, central bathroom, open living area and adjoining angular kitchen with meals area. The home is extended to the outdoors through its large floor-to-ceiling glass windows, sliding glass doors, and adjoining timber terrace; ideal for relaxing outside or for open-air entertaining and dining. Furthermore, the home comes with a complete interior furniture package designed by Studioroca and sourced from local Mexican furniture makers.

“The concept of minimum housing in the world has become a trend that by its characteristics provides freedom; the minimum spaces demand less energy and resources; resources that we can use for activities focused on our physical, mind and soul,” says Studioroca. “VMD is an exercise of conceptual approach to the reality that a person, a couple or a small family could live. This project aims to inspire your physical, mental and spiritual playing field with respect to the natural environment and the person himself.”

The VMD features a modern angular kitchen with meals area
The VMD features a modern angular kitchen with meals area

The VMD home also comes fully equipped with rooftop solar panels with UV protection and a rainwater collection system for complete off-the-grid living. The home is fitted with solar heaters as standard, while buyers have the option of including an incinerator toilet if they desire. The home also boasts smart lighting and video surveillance technology, allowing owners to control the system remotely.

The starting price for the single bedroom VMD model is MXN 950,000 (about US$49,100), with an installation turnaround of just 99 days from date of order.

Source: Taller Escape, Studioroca via Archdaily

View gallery - 21 images
2 comments
2 comments
Ret. Engineer
Is it bulletproof?
guzmanchinky
Super nice looking! Not sure about how safe it would be to have a place this nice off grid in the middle of nowhere in Mexico?