Tiny Houses

A foldable tiny home you can install in just 60 minutes without tools

A foldable tiny home you can install in just 60 minutes without tools
The Boxabl Baby Box fully set up in Boxabl's Las Vegas warehouse
The Boxabl Baby Box fully set up in Boxabl's Las Vegas warehouse
View 9 Images
The Boxabl Baby Box fully set up in Boxabl's Las Vegas warehouse
1/9
The Boxabl Baby Box fully set up in Boxabl's Las Vegas warehouse
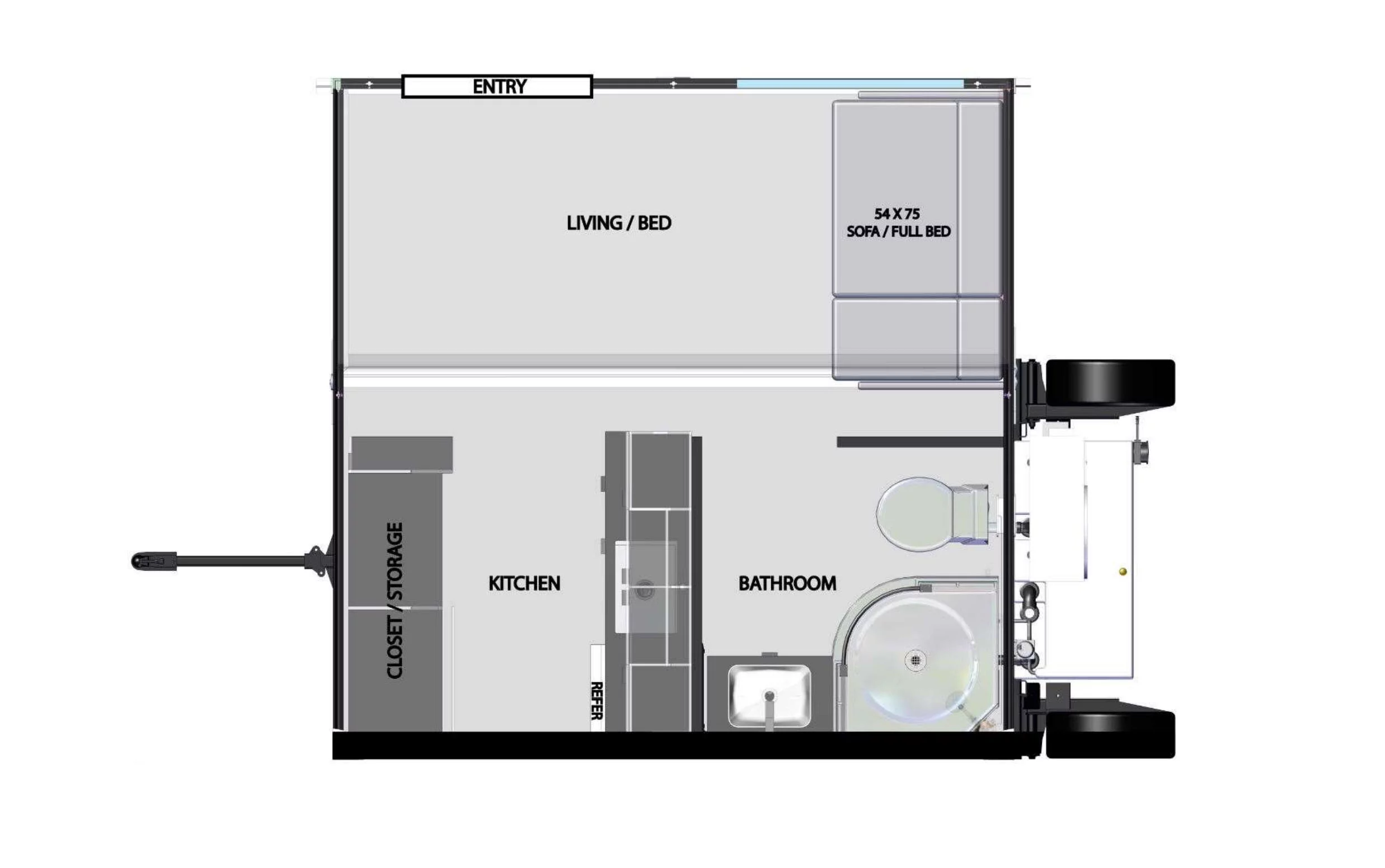
The Boxabl Baby Box floorplan, showing how well they've designed it without wasting valuable space in such a tiny home
2/9
The Boxabl Baby Box floorplan, showing how well they've designed it without wasting valuable space in such a tiny home
Inside the Baby Box livingroom/bedroom with its custom SLS (sit, lounge, sleep) couch
3/9
Inside the Baby Box livingroom/bedroom with its custom SLS (sit, lounge, sleep) couch
There's room enough for a 55" TV to be mounted on the wall, according to Boxabl
4/9
There's room enough for a 55" TV to be mounted on the wall, according to Boxabl
The bathroom is situated immediately next to the bedroom/living room. Great if you live alone. Not so great if you don't and have any concerns whatsoever about modesty
5/9
The bathroom is situated immediately next to the bedroom/living room. Great if you live alone. Not so great if you don't and have any concerns whatsoever about modesty
The shower, after seeing 6 ft+ tall (183cm+) Boxabl CEO Paolo Tiramani, might not work well for big guys and gals (like myself). It looked like a pretty tight squeeze
6/9
The shower, after seeing 6 ft+ tall (183cm+) Boxabl CEO Paolo Tiramani, might not work well for big guys and gals (like myself). It looked like a pretty tight squeeze
The Baby Box utilizes space well. Here in the kitchen, is a full length closet fo
7/9
The Baby Box utilizes space well. Here in the kitchen, is a full length closet/pantry
The Boxabl Baby Box floorplan folded out, also showing the trailer's wheels and hitch
8/9
The Boxabl Baby Box floorplan folded out, also showing the trailer's wheels and hitch
A rendering of the Boxabl Baby Box before being unfolded, and the adjustable rear axle height in its lowest setting
9/9
A rendering of the Boxabl Baby Box before being unfolded, and the adjustable rear axle height in its lowest setting
View gallery - 9 images

Boxabl's latest tiny home creation, the Baby Box, is an ultra-compact, foldable tiny home. It's designed to be so easy and simple to construct that one person, without any help or tools, can set it up and start living the tiny life. And did we mention it's cheap?

According to Boxabl's website, for a US$19,999 introductory price (which will go up another 10 grand later), you can buy this 120-sq-ft (11.15-sq-m) turnkey home, with the option to have it delivered or pick it up yourself from Boxabl's Las Vegas, Nevada warehouse. It has everything included that you'd need to put a roof over your head right away.

The tiny home comes packed on a trailer, weighs 2,900 lb (1,315 kg) and has a 1,000-lb (454-kg) hitch weight, meaning most SUVs or trucks should be able to pull it with ease, very much like a traditional bumper-pull RV. When in tow, it's only 6 ft 6 in (1.98 m) wide and 14 ft 9 in (4.5 m) long, making it smaller than a typical 7x14-ft cargo trailer.

A rendering of the Boxabl Baby Box before being unfolded, and the adjustable rear axle height in its lowest setting
A rendering of the Boxabl Baby Box before being unfolded, and the adjustable rear axle height in its lowest setting

Once unfolded, the Baby Box measures 14 ft 9 in (4.5 m) long, 14 ft 1 in (4.29 m) wide, and 9 ft 3 in (2.82 m) high, making it over twice as wide as its travel mode. And Boxabl claims a single person should be able to have the Baby Box fully set up in about an hour without needing any tools.

Quite a bold claim, and pretty awesome if true.

The inside of the Baby Box offers up 120 sq ft of sensible and climate-controlled tiny home living space. The unit comes equipped with a 9,000-BTU ductless A/C with heat pump for both warm and cold weather and is fully insulated.

There's room enough for a 55" TV to be mounted on the wall, according to Boxabl
There's room enough for a 55" TV to be mounted on the wall, according to Boxabl

The diminutive domicile shares many of the same features you'd find in an RV: Two 12-volt deep cycle batteries that run the lighting and water pump, and 30-gallon (114-L) black, grey, and freshwater tanks. Plumbing is a standard water hose and the same sewer connections you'd find on typical recreational vehicles, as is the 6-gallon (23-L) electric water heater. It's even powered by an RV-style 30-amp plug.

Where the Baby Box differs from RV designs, however, is that the tow hitch can be folded to allow the Baby Box to sit on firm ground or a foundation you may have prepared. No more bouncing around when people walk about the house.

The bathroom is situated immediately next to the bedroom/living room. Great if you live alone. Not so great if you don't and have any concerns whatsoever about modesty
The bathroom is situated immediately next to the bedroom/living room. Great if you live alone. Not so great if you don't and have any concerns whatsoever about modesty

The living room is also the bedroom. Not ideal for a family, but those who have been studio apartment living might appreciate not having neighbors sharing a wall, at the very least. All Baby Box units come with an in-house designed "SLS" sofa. That's "Sit, Lounge, Sleep," and it easily unfolds into a bed much like a jackknife sofa would, simply by grabbing a loop at the top of the couch and pulling it towards you.

It comes with a countertop induction stove and a small 3.2-cu-ft (0.09-cu-m) refrigerator in the kitchen. Laminate countertops house a deep drop-in kitchen sink and Boxabl has even gone so far as to include USB outlets in the kitchen for charging your small electronics.

The Baby Box utilizes space well. Here in the kitchen, is a full length closet fo
The Baby Box utilizes space well. Here in the kitchen, is a full length closet/pantry

The bathroom has a marine-style toilet with a foot-operated flush, while the shower has glass walls and a moon roof to give it a luxury feel. For ventilation, the bathroom has a 12-volt vent fan.

As standard with RV units, the Baby Box also comes with smoke and CO2 detectors and a fire extinguisher.

The Boxabl Baby Box floorplan, showing how well they've designed it without wasting valuable space in such a tiny home
The Boxabl Baby Box floorplan, showing how well they've designed it without wasting valuable space in such a tiny home

The Boxabl Baby Box is solar-compatible and can be run off a 4.5-kW generator for those who plan to go off-grid.

For the minimalist who may not want to spend a fortune on a tiny home, Boxabl's approach is to keep it inexpensive without sacrificing quality or space. I'd say this one checks a lot of the boxes.

Click out the gallery for more images.

Source: Boxabl

View gallery - 9 images
13 comments
13 comments
CarolynFarstrider
How do you get into the bathroom if the bed is in sleeping position?
c w
Sleep with your head away from the bathroom, and just slide out when you need to go, feet first.
White Rabbit
@CarolynFarstrider The overhead floor plan (pic 8 of 9) shows floor space between the bed and the bathroom wall. Hard to say how much, but enough to get into bed from the side rather than the head/foot, and certainly enough to put one's feet on the floor before stepping into the bathroom.
Jinpa
By whom, and what cost, will a foundation be installed, to code? Own the land or pay outrageous ground rent. Don't put it where it is in a flood zone. Some states, like Florida, have learned that if these things aren't firmly cabled to the ground, they are death traps in high wind. Local permits for sewer, water and electricity will be required, before installation.
BlueOak
Lots of renderings and nothing actually showing the quick set-up, no photos, no videos.
No bouncing around when on a foundation unlike an RV trailer? Even modest trailers have corner jacks.
“ When in tow, it's only 6 ft 6 in (1.98 m) wide and 14 ft 9 in (4.5 m) long, making it smaller than a typical 7x14-ft cargo trailer.”
Using the also stated height of 9.25 ft vs the typical 7-8 ft height of cargo trailers, how is 887cu ft smaller than 784 cu ft (using 8 ft high)? Height also matters when towing.
ljaques
This could be great for homeless singles/couples. And they'll prioritize your order if it's for ONLY $1,000,000 or more! Boxable has the best setup yet for the cheapest price that I've seen. I could do without the "flooring with spats", though. The little 9kBTU heat pump will keep that house warm in Wisconsin winters and cool in Arizona summers. Having the closet in the kitchen might be a problem for the clothing, picking up cooking odors. Sure beats a tent, though. Carolyn, you could always step over the other sleeper to get to the bathroom. BlueOak, I've seen very nice cargo trailers with half the space and the same HVAC.
Gregg Eshelman
What's the snow load rating for the flat roof?
Uncle Anonymous
US$19,999 doesn't include taxes. Plus, you need to find a small plot of land where the city/town by-laws will let you put your little home. Next up with be the building permit which will include submitting blueprints of your tiny home for the building inspector to approve. Then you have to put in a small concrete pad and get the building inspector to inspect/approve it. With the pad in place, you will have to get your little home delivered. When it is delivered, set up and inspected by the building inspector, you will need to get Hydro, gas water and sewage hooked up. And, when all this is done, you will need your building inspector to sign off on your occupancy permit And finally, with all that behind you, you will be the proud owner of a home that's so small you will have to go outside to change your mind.
Xero_Hero
The price on this is extremely high for what it is. You can get one shipped from China (built very well) almost 3 times the size, luxurious for $10k plus another $5k to ship it. I'd put a link but I think my comment would be removed.
JS
@CarolynFarstrider - Athletically! :P
@BlueOak - My Thor class C lacks stabilizers in the front.
@Uncle Anonymous - Some states, like Oregon, don't have sales tax. Other states vary. I don't think I've ever seen anything listed on the internet with "this includes tax" price on it.
@Xero_Hero - You can absolutely include a link to something relevant to a story. :) As long as it's safe for work and not spammy, by all means.
Load More