Romanian architecture firm Archaeus has constructed an off-grid shelter located within Romania's Southern Carpathians mountain range, at an altitude of 2,100 m (6,889 ft). Dubbed Călțun Shelter, the structure offers sanctuary to a local mountain rescue team and anyone else who needs it.
Călțun Shelter is based in the Făgăraș Mountains, in an area that's particularly hazardous. Obviously, building anything of substance in such a remote location is a challenge, and Archaeus was required to transport the prefabricated building via helicopter in three main sections.
Cross Laminated Timber (CLT) was used as the primary construction material, in addition to steel, while the exterior is clad in aluminum sheets. The shelter is shaped so as to mitigate strong winds.

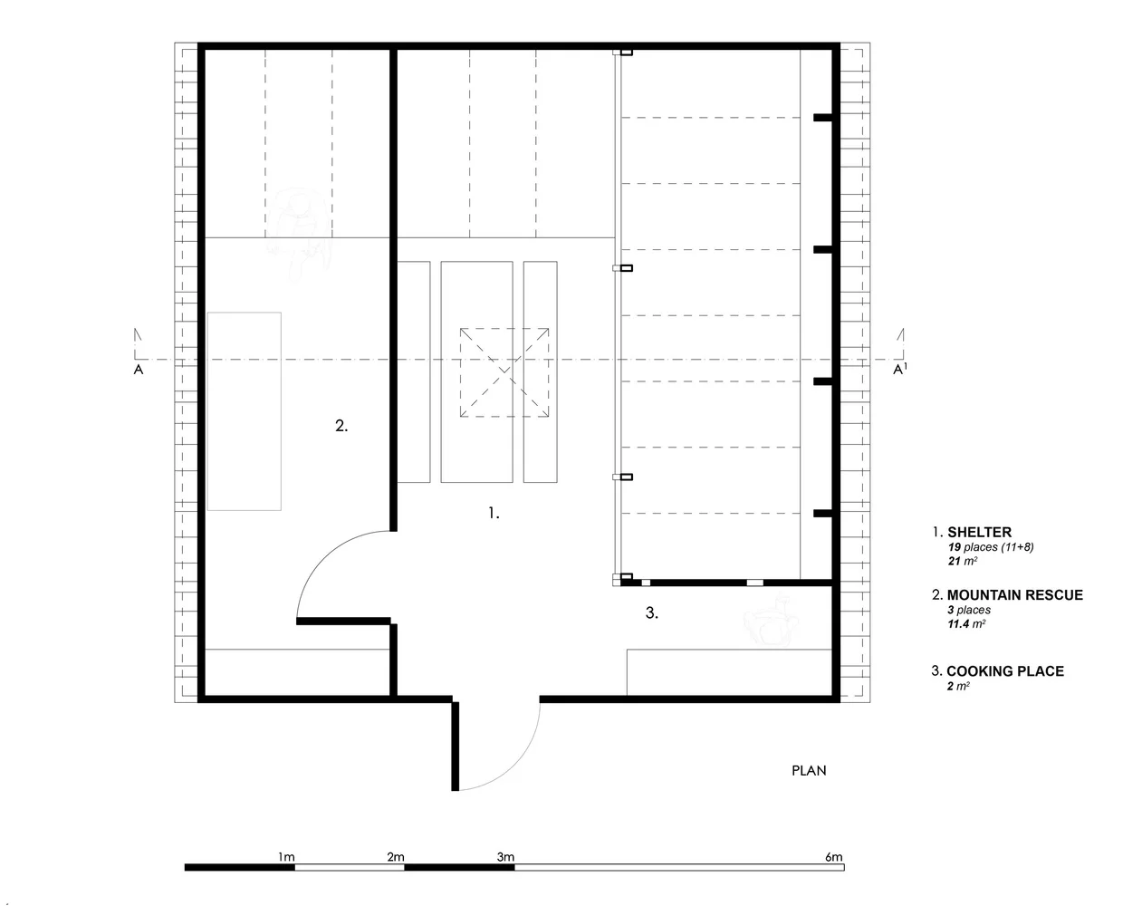
Inside, the shelter is sparsely furnished and includes no toilet or running water, but it's certainly more comfortable than a night spent on the mountainside. It comprises a total floorspace of 35 sq m (376 sq ft), which is split between a cooking area with a stove, a 19-person space that's open to anyone exploring the mountains, and a smaller three-person space that serves as a first-aid room for the local mountain rescue team.
Călțun Shelter sports a roof-based photovoltaic array that provides power for charging phones and similar small devices. The same solar array also powers a roof-based exterior light.
The Călțun Shelter was completed in July 2015.
Source: Archaeus via Arch Daily